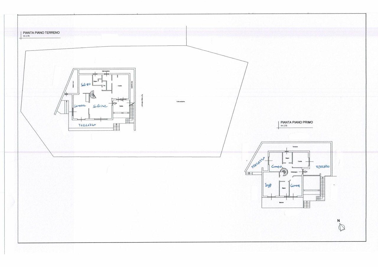
11 vani 247mq
Dati annuncio : Vendita Ville, Ospedaletti
Ospedaletti, fantastica villa su due livelli, già predisposta per essere suddivisa in due appartamentì, metratura totale mq.247 comm.li, al piano terra 119 mq. + mq.15 lavanderia e cantina, al primo piano mq, 113 oltre a una metratura di 193 mq. tra terrazzi e balconi. Pertinenza della villa mq.953 di terreno, giardino e cortile, area parcheggio.
La villa gode di una vista super fantastica, attualmente è una bifamiliare, con un apparamento al piano terra composto di ingresso in salone, camera matrimoniale, cucina abitabile con dispensa, salotto, antibagno e bagno, oltre ad una fantastica e fresca tettoia che anticipa il postone d´ingresso, al piano primo troviamo il secondo appartamento composto da ingresso due camere da letto, soggiorno, cucina abitabile nuova, due bagni, una terrazza che guarda tutto il golfo di Ospedaletti e anche più..., area di terrazza perimetrale vivibile per il resto della casa, sempre con una vista a 360° ....fantastica. Parcheggi in area pertinenziale circa 5 posti auto, di cui uno coperto da tettoia, per concludere terreno in corte pertinenziale di circsa 950 mq. con orto e piante. Nota sicuramenti di tutto rilievo il diritto di utilizzare la piscina che si trova sottostante la proprietà e che si raggiunge in un minuto, sempre per poter godere del sole e di un panorama unico. La trattativa è riservata e la villa è tenuta perfettamente, costrutia intorno agli anni 1970, ma ristrutturata di ottime finuture. Trattativa riservata in agenzia.
- PropostaOffro
- ContrattoVendita
- Prezzo1.250.000,00 €
- Anno1970
- Vani11
- Numero piani2
- Mq totali247
- Camere4
- Bagni3
- Posti auto5
- Classe energeticaVa
- Classe energetica (ipe)0.0
- StatoOttimo
- AscensoreNo
- Tipo costruzionePrestigio
- TerrazzoSi
- GiardinoNd
- CantinaSi
- BoxSi
- ProvinciaImperia
- ComuneOspedaletti
- CodiceEA-F0C3FD






