E' in corso la verifica sull'accuratezza dei dati del post
15 vani 500mq
390.000,00 €
0 Piace
0 Piace
Dati annuncio : Vendita Case, Reggio nell'Emilia
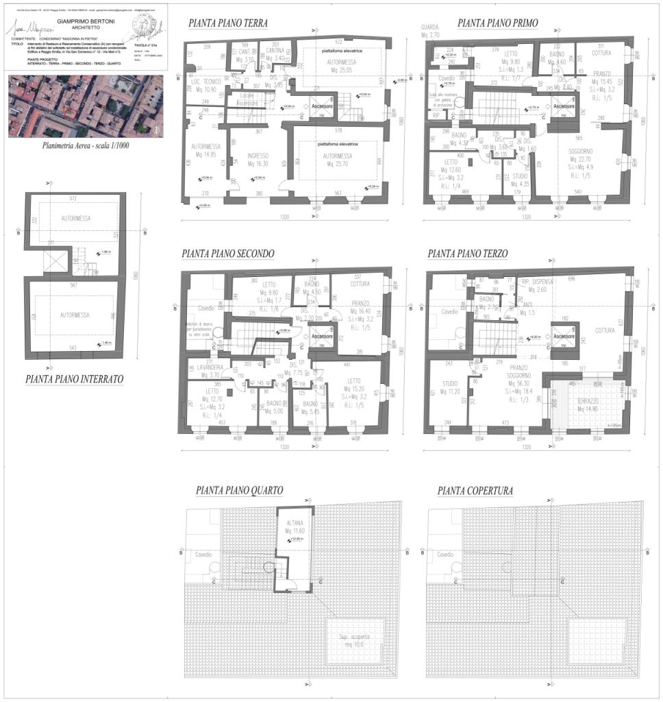
In zona Centro Storico, proponiamo porzione di casa di circa mq. 500 lordi, terra tetto da ristrutturare completamente con progetto di ristrutturazione approvato disposta su Piano Terra con ingresso su Via San Domenico, tre garage di cui due con elevatore, tre cantine; Primo Piano appartamento di circa mq. 130 con possibilità di frazionarlo in due unità immobiliari; Secondo Piano appartamento di pari superficie frazionabile anch´esso in due unità immobiliari; Terzo Piano mansarda abitabile dove è previsto un appartamento di circa mq. 110 + altana di circa 11,60 m e terrazzo di circa mq. 14,90. Progetto da poter modificare in base alle esigenze dell´acquirente.
- PropostaOffro
- ContrattoVendita
- Prezzo390.000,00 €
- Vani15
- Numero piani4
- Mq totali500
- Camere6
- Bagni7
- Classe energeticaG
- Classe energetica (ipe)0.0
- StatoDa ristrutturare
- AscensoreNo
- TerrazzoSi
- GiardinoNs
- CantinaSi
- ProvinciaReggio nell'emilia
- ComuneReggio nell'emilia
- CodiceEA-56F7D1






