1600mq
Dati annuncio : Vendita Ville, Susegana
Rif. AM57
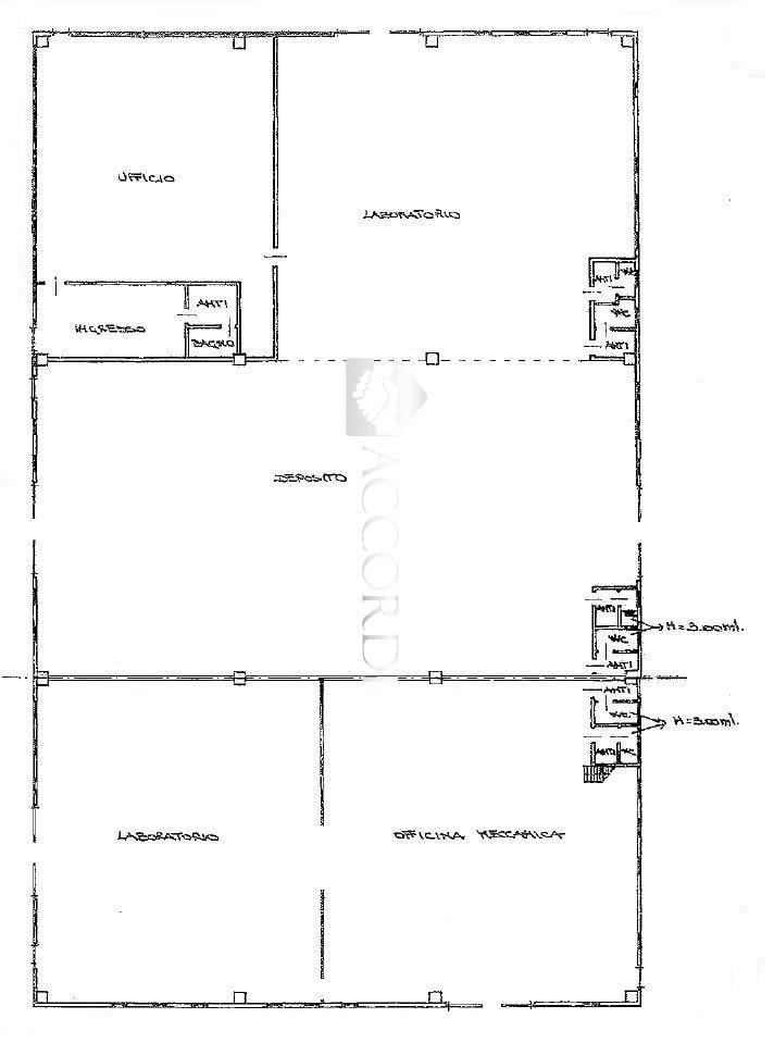
Capannone in cemento armato precompresso di 1600 mq. complessivi in area artigianale/industriale a Susegana.
La struttura è composta da pilastri e architravi in c.a. con altezza da pavimento finito a intradosso tegolo a TT in c.a.p. pari a 5,50 m con pannelli di tamponamento verticali in c.a. Impiantistica comprensiva di illuminazione e antincendio.
Un´area è adattabile ad uffici e vi è la possibilità di unire in un´unica unità le aree adibite a deposito/laboratorio ora separate da una pannellatura orizzontale interna, ampia area esterna sul fronte sud del capannone con piazzali di manovra e stoccaggio e una tettoia di 300 mq. sul fronte nord con h = 2,50 m
TRATTATIVA RISERVATA!
Si intende precisare che gli indirizzi presenti negli annunci non sono identificativi dell´ubicazione precisa dell´immobile,
danno un riferimento solo generico della zona al cliente che ricerca, al fine di tutelare la privacy e riservatezza del venditore.
Per visionare l´immobile o per ricevere ulteriori informazioni contattateci senza impegno -
Le nostre sedi : Montebelluna (TV) - Maser (TV) - Conegliano (TV) - Pieve di Soligo (TV) - Maerne di Martellago (VE). Classe Energetica: G - IPE: 0.00kWh/mq anno
- PropostaOffro
- ContrattoVendita
- Prezzo-
- Mq totali1600
- Classe energeticaG
- StatoBuono
- Tipo costruzioneCommerciale
- DisponibilitLibero al rogito
- ProvinciaTreviso
- ComuneSusegana
- Data21-08-2025 05:14:52
- CodiceEA-39EDE8

