250mq
Dati annuncio : Affitto Case, San Pietro di Feletto
DT30 - AFFITTO LOCALI COMMERCIALI+UFFICIO Crevada - Prezzo 750Euro mensili
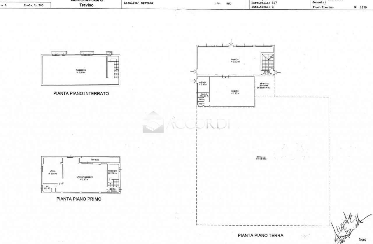
Affittasi immobile indipendente con locali commerciali di 250mq (150mq al piano terra + 100mq al piano superiore) con vetrine, in area adiacente alla viabilità principale, ufficio (arredato) e relativi servizi igienici. Molto luminoso. Al piano interrato altri 100mq (altezza ridotta). Parcheggio. Per info e visite: Daniela 3293032500
Si tende a precisare che gli indirizzi presenti negli annunci non sono identificativi dell´ubicazione precisa dell´immobile, danno un riferimento solo generico della zona al cliente che ricerca, al fine di tutelare la privacy e la riservatezza del venditore. Per visionare l´immobile o per ricevere ulteriori informazioni contattateci: 0438/1962179 - Le nostre Sedi: Montebelluna (TV) - Maser (TV) - Conegliano (TV) - Jesolo (VE).
- PropostaOffro
- ContrattoAffitto
- Prezzo750,00 €
- Mq totali250
- Tipo costruzioneCommerciale
- ProvinciaTreviso
- ComuneSan pietro di feletto
- Data29-08-2025 06:13:57
- CodiceEA-25792D

