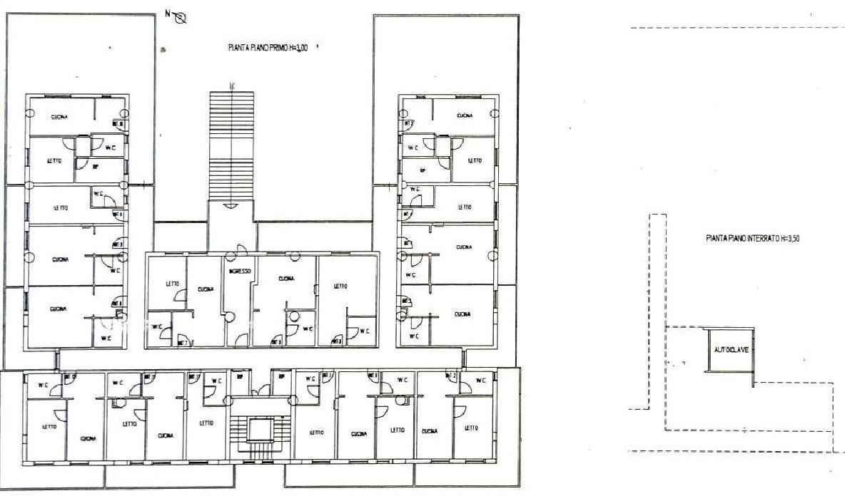
30 vani 765mq
1.300.000,00 €
0 Piace
0 Piace
Dati annuncio : Vendita Case, Alba Adriatica
ALBA ADRIATICA - sul Lungomare Marconi, in ottima posizione ben servita, intero piano primo di piccolo edificio edificato nei primi anni 2000, in ottime condizioni, con ingresso sia privato indipendente che condominiale con ascensore. Si compone di 17 unità immobiliari arredate composte da monolocali, bilocali e trilocali ognuno con servizi, balconi o ampi terrazzi godenti di veduta panoramica sul mare. Ogni appartamento è dotato di card magnetica, aria condizionata, TV satellitare e lavatrice. Attualmente è utilizzato come Residence con destinazione d’uso “ Case Appartamenti per Vacanze“; può però essere convertito in Residenziale con versamento di Bucalossi 2. Rif. 6362 DiLeoImmobiliare
- PropostaOffro
- ContrattoVendita
- Prezzo1.300.000,00 €
- Anno2003
- Vani30
- Numero piani1
- Mq totali765
- Bagni17
- Classe energeticaG
- Classe energetica (ipe)175.0
- StatoBuono
- AscensoreSi
- CucinaAngolo cottura
- TerrazzoNo
- GiardinoNs
- CantinaNo
- ArrediArredato
- ProvinciaTeramo
- ComuneAlba adriatica
- Data23-10-2025 05:45:42
- CodiceEA-7802A4







