300mq
140.000,00 €
0 Piace
0 Piace
Dati annuncio : Vendita Case, Arcola
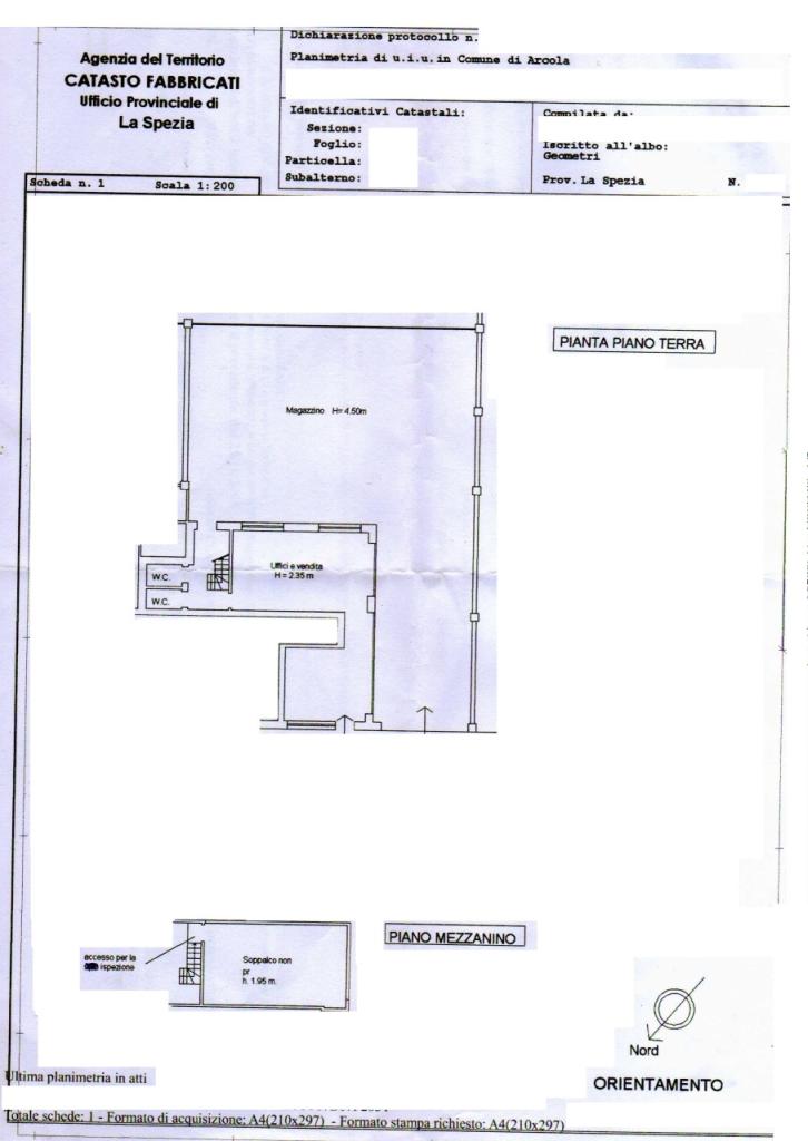
Capannone artigianale della superficie di 300mq circa, con picolo parcheggio esterno, provvisto di impianti, servizio igienico. Attualmente locato ma liberabile a 6 mesi,.
- PropostaOffro
- ContrattoVendita
- Prezzo140.000,00 €
- Numero piani1
- Mq totali300
- Classe energeticaG
- Classe energetica (ipe)0.0
- StatoBuono
- AscensoreNo
- TerrazzoNo
- GiardinoNs
- CantinaNo
- ProvinciaLa spezia
- ComuneArcola
- Data12-10-2025 06:04:21
- CodiceEA-BDB5FC

