318mq
175.000,00 €

0 Piace
0 Piace
Dati annuncio : Vendita Case, Castelfiorentino
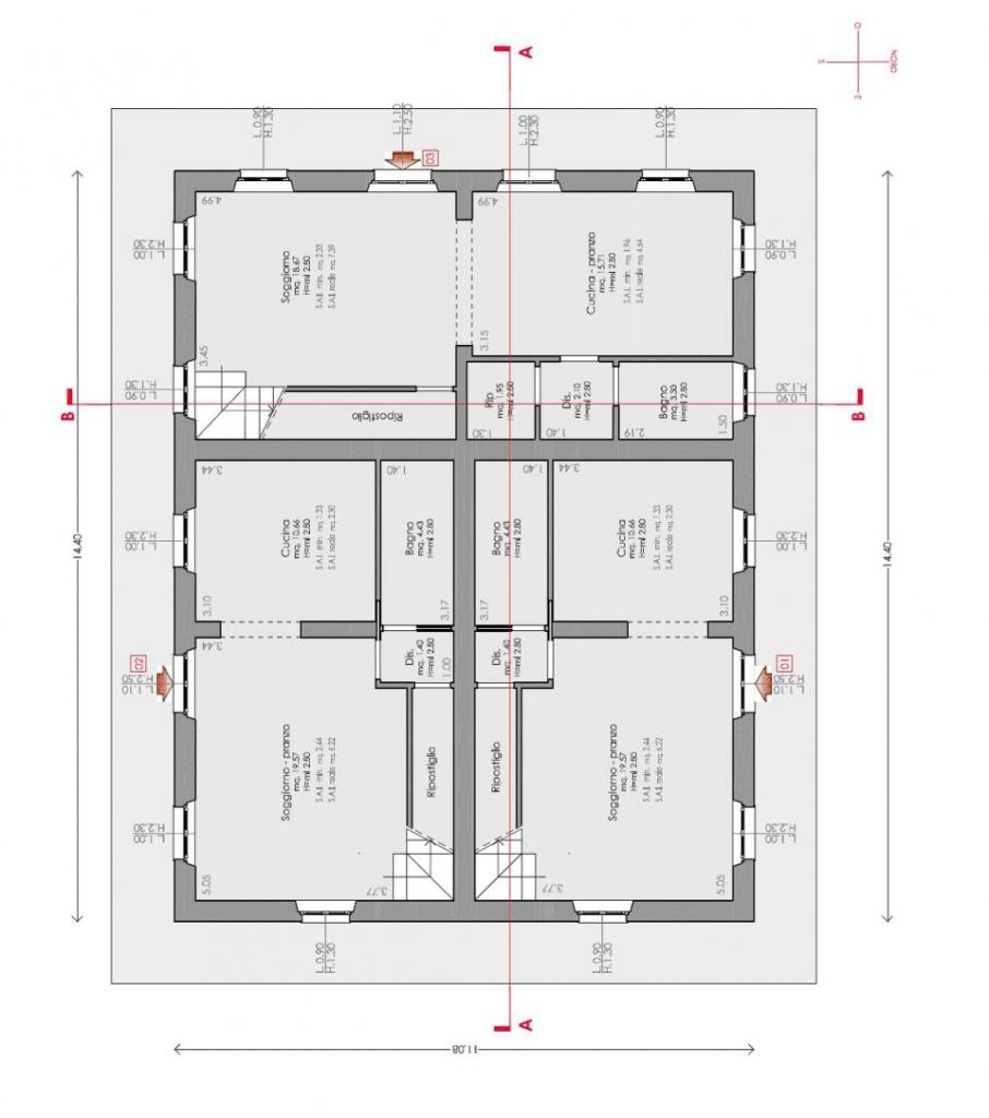
Lotto di terreno edificabile per la realizzazione di una Colonica/Villa indipendente di mq 318 circa complessivi (mc 896), strutturata su due livelli, con 3.000 mq di terreno per giardino. Possibilità di suddivisione degli interni personalizzata. L´edificio può essere destinato ad unica villa unifamiliare o suddiviso in più abitazioni di varie tipologie e dimensioni. Bella posizione collinare panoramica. Classe Energetica: immobile non soggetto a classificazione
- PropostaOffro
- ContrattoVendita
- Prezzo175.000,00 €
- Numero piani2
- Mq giardino3000
- Mq totali318
- Classe energeticaNc
- Tipo costruzioneResidenziale
- GiardinoPrivato
- DisponibilitLibero
- ProvinciaFirenze
- ComuneCastelfiorentino
- Data18-08-2025 06:03:15
- CodiceEA-11A9DB

Agenzia immobiliare il borgo
Via Vittorio Veneto - Gambassi Terme






