E' in corso la verifica sull'accuratezza dei dati del post
5 vani 220mq
450.000,00 €
0 Piace
0 Piace
Dati annuncio : Vendita Pentavani, Ravenna
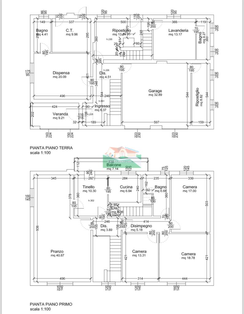
ZONA SAN BIAGIO: Casa indipendente di ampie metrature su due livelli con giardino, PIANO TERRA: Ampio giardino su quattro lati, ampia veranda, due garage, 2 comodi ripostigli, lavanderia, 2 bagni entrambi finestrati PRIMO PIANO: ampio soggiorno con camino, tinello, cucina con balcone, disimpegno notte con 3 camere da letto, bagno finestrato con la vasca, riscaldamento autonomo, classe energetica G, Caldaia a condensazione.
- PropostaOffro
- ContrattoVendita
- Prezzo450.000,00 €
- Anno1968
- Vani5
- Numero piani2
- Mq totali220
- Camere2
- Bagni2
- Classe energeticaG
- Classe energetica (ipe)0.0
- StatoBuono
- AscensoreNo
- TerrazzoNo
- GiardinoNd
- CantinaNo
- ArrediArredato
- ProvinciaRavenna
- ComuneRavenna
- CodiceEA-F3EF39