5 vani 250mq
Dati annuncio : Vendita Pentavani, Maser
Rif. AB320 - BIFAMILIARE IN VENDITA A MASER - FRAZIONE.
Vendesi casa bifamiliare di nuova costruzione dalle ampie metrature. Il prezzo è riferito allo stato di grezzo avanzato.
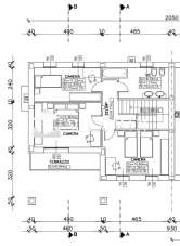
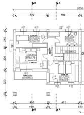
La cucina è di 16 mq, il soggiorno di 30 mq, il ripostiglio di 4 mq ed un bagno di 5 mq. Al piano superiore abbiamo 2 camere matrimoniali da ben 15 mq ciascuna, di cui una dotata di un terrazzo , una camera singola di 12 mq ed un bagno di 9 mq.
Al piano interrato, abbiamo garage doppio, una cantina ed un ripostiglio con annessa lavanderia.
Puoi visionare altre proposte di immobili ad uso residenziale, agricolo, industriale-commerciale e turistico direttamente sul nostro sito.
Presso Le nostre sedi trovate assistenza e servizi a 360° in tema di investimenti e soluzioni immobiliari:
Agenti immobiliari professionali ed indipendenti Vi seguiranno in tutte le fasi dell´intermediazione immobiliare, dalla vendita, all´ acquisto fino alle locazione di immobili.
Professionisti in materia immobiliare Vi forniranno le proprie competenze per la la gestione e la consulenza immobiliare con analisi di investimento, valutazioni commerciali, finanziarie, assicurative e realizzazioni di progetti immobiliari.
Si intende precisare che gli indirizzi presenti negli annunci non sono identificativi dell´ubicazione precisa dell´immobile, danno un riferimento solo generico della zona al cliente che ricerca, al fine di tutelare la privacy e riservatezza del venditore. Per visionare l´immobile o per ricevere ulteriori informazioni contattateci: 0423 1904721.
Le nostre sedi : Montebelluna (TV) - Maser (TV) - Conegliano (TV) - Jesolo (VE). Classe Energetica: B - IPE: 0.00kWh/mq anno
- PropostaOffro
- ContrattoVendita
- Prezzo-
- Vani5
- Numero piani3
- Piano13
- Mq box31
- Mq giardino200
- Mq totali250
- Camere3
- Bagni3
- Posti auto2
- Unità condominiali2
- Classe energeticaB
- StatoNuovo
- AscensoreNo
- Tipo costruzioneResidenziale
- CucinaAbitabile
- TerrazzoSi
- GiardinoPrivato
- CantinaSi
- RiscaldamentoAutonomo
- ArrediNon arredato
- BoxBox doppio
- DisponibilitLibero
- ProvinciaTreviso
- ComuneMaser
- Data02-10-2025 06:18:14
- CodiceEA-6E1B19











