5 vani 380mq
Dati annuncio : Vendita Pentavani, Vittorio Veneto
NUDA PROPRIETA´ - CASA SINGOLA IN CENTRO A VITTORIO VENETO
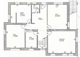
SM22 Vendesi NUDA PROPRIETA´ in tranquilla zona residenziale in centro a Vittorio Veneto. L´immobile si sviluppa su due livelli: al piano terra troviamo i locali accessori (garage, cantina, centrale termica, lavanderia, wc, disbrigo e stanza multiuso) e al primo piano, collegato da una scala interna, abbiamo l´appartamento principale composto da soggiorno, cucina separata, corridoio, tre ampie camere e due bagni. Proposta imperdibile per chi vuole assicurarsi già una casa per il futuro approfittando di un prezzo decisamente interessante.
Per info : Sonia 3487065352
Si intende precisare che gli indirizzi presenti negli annunci non sono identificativi dell´ubicazione precisa dell´immobile, danno un riferimento solo generico della zona al cliente che ricerca, al fine di tutelare la privacy e riservatezza del venditore. Per visionare l´immobile o per ricevere ulteriori informazioni contattateci: 0438.1962179. - Le nostre sedi : Montebelluna (TV) - Maser (TV) - Conegliano (TV) - Jesolo (VE).
- PropostaOffro
- ContrattoVendita
- Prezzo120.000,00 €
- Vani5
- Numero piani2
- Piano13
- Mq box22
- Mq giardino300
- Mq totali380
- Camere3
- Bagni3
- Posti auto1
- StatoAbitabile
- AscensoreNo
- Tipo costruzioneResidenziale
- CucinaAbitabile
- TerrazzoSi
- GiardinoPrivato
- CantinaSi
- RiscaldamentoAutonomo
- ArrediArredato
- BoxBox singolo
- ProvinciaTreviso
- ComuneVittorio veneto
- Data02-08-2025 05:58:06
- CodiceEA-BFE59D








