6 vani 150mq
Dati annuncio : Vendita Esavani, Nervesa della Battaglia
Rif.: 24-MI 024 Per informazioni 335-57.03.837 Mauro.
NERVESA DELLA BATTAGLIA. Villa a schiera. Porzione centrale.
GREZZO AVANZATO
Proponiamo in vendita porzione centrale di villa a schiera. Sorge in zona residenziale di recente realizzazione, comoda ai servizi e al centro paese.
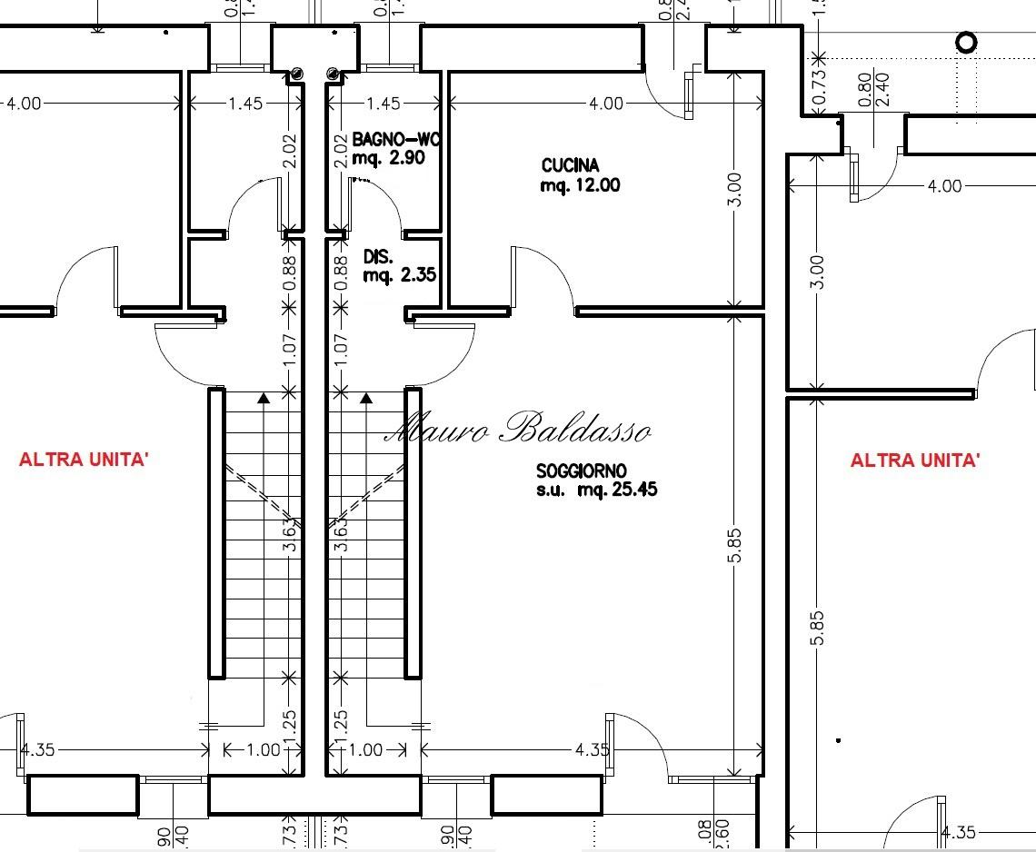
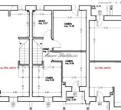
Internamente si sviluppa come segue: entrata su soggiorno, cucina abitabile, disimpegno e bagno finestrato. Al piano primo camera matrimoniale, 2 camere singole e bagno.
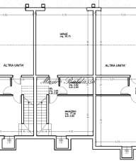
Taverna, garage doppio (oltre mq 35) e lavanderia all´interrato. Giardino di circa mq 50.
La casa viene venduta allo STATO DI GREZZO AVANZATO con ampia possibilità di personalizzazione!
Classe Energetica: NON SOGGETTA A CLASSIFICAZIONE IN QUANTO AL GREZZO AVANZATO
Al fine di tutelare la privacy dei nostri clienti, precisiamo che gli indirizzi presenti negli annunci sono puramente indicativi e danno un riferimento solo generico della zona in cui si trova realmente l´immobile.
Per informazioni chiama 335 -- 57.03.837 (da lunedì al venerdì ore 8/20 continuato; sabato mattina ore 8/13) indicando il codice di riferimento.
Oppure invia una mail a - [email protected] - con scritto il codice di riferimento.
Se preferisci, salvati il mio numero di cellulare e SCRIVIMI UN MESSAGGIO WHATSAPP al numero 335-57.03.837 indicando il riferimento dell´annuncio e verrai ricontattato.
Visita il sito per vedere se ci sono altre offerte immobiliari che incrociano la tua ricerca: www.maurobaldasso.it
Classe Energetica: B - IPE: 0.00kWh/mq anno
- PropostaOffro
- ContrattoVendita
- Prezzo118.000,00 €
- Vani6
- Numero piani2
- Piano13
- Mq box35
- Mq giardino50
- Mq totali150
- Camere3
- Bagni2
- Posti auto2
- Classe energeticaB
- StatoNuovo
- AscensoreNo
- Tipo costruzioneResidenziale
- CucinaAbitabile
- TerrazzoSi
- GiardinoPrivato
- CantinaSi
- RiscaldamentoAutonomo
- ArrediNon arredato
- BoxBox doppio
- DisponibilitLibero
- Spese condominiali15
- Cadenza spese condominialiMensili
- ProvinciaTreviso
- ComuneNervesa della battaglia
- Data22-09-2025 05:31:32
- CodiceEA-E30C20











