6000mq
400.000,00 €
0 Piace
0 Piace
Dati annuncio : Vendita Case, Catania
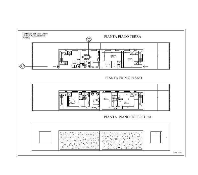
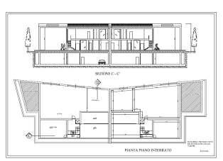
Catania posizionato a ridosso della circonvallazione, in zona collinare panoramica vista mare, proponiamo in vendita terreno edificabile di 6000 mq con progetto approvato per 2 ville accorparte dal desing moderno di ultima generazione con piscina, composte da 2 livelli per un totale di 130 mq cad. una, più cantinato di 170 mq cad. una. Possibilità di variante del progetto per la realizzazione di 3 ville singole. € 400.000
- PropostaOffro
- ContrattoVendita
- Prezzo400.000,00 €
- Numero piani1
- Mq totali6000
- Classe energeticaNa
- Classe energetica (ipe)0.0
- StatoOttimo
- AscensoreNo
- TerrazzoNo
- GiardinoNs
- CantinaNo
- PanoramaVista mare
- ProvinciaCatania
- ComuneCatania
- Data15-02-2026 05:41:00
- CodiceEA-C5D6FD







