7 vani 120mq
Dati annuncio : Vendita Eptavani, Sanremo
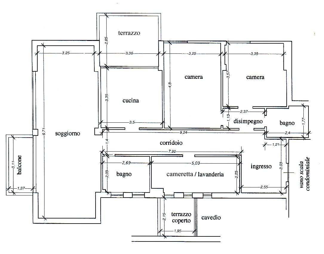
Elegante appartamento di circa 120 mq. situato al terzo piano di 4 in complesso con parco e portineria a ridosso di Corso degli Inglesi. E´ in buone condizioni, essendo stato ristrutturato nel 2006, ed è composto da ingresso con bel disimpegno, salone doppio con balcone, cucina abitabile con splendido terrazzo immerso nel verde del parco, due camere matrimoniali, cameretta, oggi usata come stireria, che si affaccia su un terrazzo coperto utilizzato come lavanderia, doppi servizi. Completa la proprietà un box doppio venduto separatamente a € 45.000 . Ottimo per prima casa.
Elegante, luminoso, confortevole, piacevole, come il terrazzo della cucina, affacciato sul verde lussureggiante del parco condominiale. Poche realtà a Sanremo offrono altrettanto, e il prezzo è più che adeguato al mercato odierno. Da vedere.
- PropostaOffro
- ContrattoVendita
- Prezzo450.000,00 €
- Vani7
- Mq totali120
- Camere3
- Bagni2
- Classe energeticaD
- Classe energetica (ipe)90.91
- StatoOttimo
- AscensoreSi
- Tipo costruzionePrestigio
- TerrazzoSi
- GiardinoNd
- CantinaNo
- RiscaldamentoAutonomo
- Spese condominiali192.0
- ProvinciaImperia
- ComuneSanremo
- CodiceEA-0E7B0F






