E' in corso la verifica sull'accuratezza dei dati del post
8 vani 250mq
520.000,00 €
0 Piace
0 Piace
Dati annuncio : Vendita Multivani, Sarzana
I D E A L E - P E R - D U E - N U C L E I F A M I G L I A R I !!!
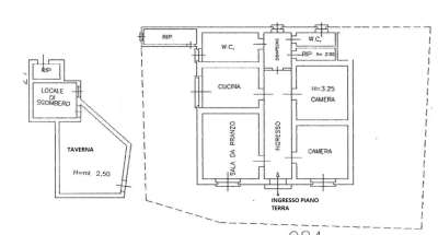
SARZANA VICINANZE CENTRO - SI VENDE INDIPENDENTE B I F A M I G L I A R E di circa 250 MQ. composta da DUE APPARTAMENTI, aventi ingresso indipendente, di circa 120 MQ. cad. disposti al piano terra e al primo piano.
GIARDINO, CORTE E TERRENO INTORNO ALLA CASA DI MQ.2000 - LOCALE TAVERNA IN MURATURA DI MQ. 50
Gli appartamenti sono composti da ingresso con corridoio centrale, due camere matrimoniali, soggiorno, cucina, doppi servizi.
Possibilità di costruire piscina.
- PropostaOffro
- ContrattoVendita
- Prezzo520.000,00 €
- Vani8
- Numero piani2
- Mq giardino1000
- Mq totali250
- Camere4
- Bagni4
- Classe energeticaG
- Classe energetica (ipe)0.0
- StatoBuono
- AscensoreNo
- CucinaAbitabile
- TerrazzoNo
- GiardinoNd
- CantinaNo
- RiscaldamentoAutonomo
- BoxSi
- ProvinciaLa spezia
- ComuneSarzana
- CodiceEA-1ADC61