8 vani 286mq
Dati annuncio : Vendita Multivani, San Pietro di Feletto
SAN PIETRO DI FELETTO - BS8 VILLA AL GREZZO SEMI INDIPENDENTE CON GIARDINO DI 3000 MQ
Proponiamo in vendita immersa nelle splendide colline tra Conegliano e Pieve di soligo villa semindipendente con 3000 mq di giardino circostante.
L´abitazione attualmente e´ allo stato grezzo, percio´ rappresenta la soluzione ideale per chi desidera personalizzare a proprio gusto le finiture interne.
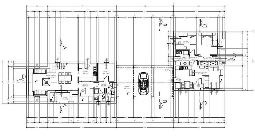
La villa e´ disposta su due livelli ed e´ cosi´ composta: al piano terra (di mq 103) troviamo soggiorno pranzo, cucina, ingresso, bagno, lavanderia e cantina. Al piano primo due camere, camera doppia, bagno e cabina armadio. All´esterno garage con tre posti auto. La villa si affaccia su un giardino di circa 3000 mq in posizione tranquilla e panoramica.
Si intende precisare che gli indirizzi presenti negli annunci non sono identificativi dell´ubicazione precisa dell´immobile, danno un riferimento solo generico della zona al cliente che ricerca, al fine di tutelare la privacy e riservatezza del venditore. Per visionare l´immobile o per ricevere ulteriori informazioni contattateci: 0438.1962179. - Le nostre sedi : Montebelluna (TV) - Maser (TV) - Conegliano (TV) - Pieve di Soligo (TV) - Villorba (TV) - Jesolo (VE). Classe Energetica: immobile non soggetto a classificazione
- PropostaOffro
- ContrattoVendita
- Prezzo250.000,00 €
- Vani8
- Numero piani2
- Piano13
- Mq box42
- Mq giardino3000
- Mq totali286
- Camere3
- Bagni3
- Unità condominiali1
- Classe energeticaNc
- StatoNuovo
- AscensoreNo
- Tipo costruzioneResidenziale
- CucinaAbitabile
- TerrazzoSi
- GiardinoPrivato
- CantinaSi
- RiscaldamentoAutonomo
- ArrediNon arredato
- BoxPosto auto esclusivo
- DisponibilitLibero
- ProvinciaTreviso
- ComuneSan pietro di feletto
- Data02-01-2026 06:38:44
- CodiceEA-282535











