E' in corso la verifica sull'accuratezza dei dati del post
8 vani 300mq
450.000,00 €
0 Piace
0 Piace
Dati annuncio : Vendita Multivani, Quattro Castella
Villa con incantevole vista panoramica con parco privato di 1.500 mq., composta da due unità abitative.
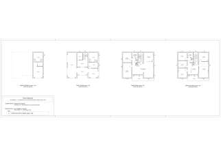
Al Piano Terra si trovano i servizi: ampia cantina, garage, porticato, patio, bagno, cucina di servizio.
Al Piano Primo ampio salone, cucina, camera matrimoniale, stanza da bagno, lavanderia, loggia e ripostiglio.
Al Piano secondo soggiorno, cucina, 3 camere, bagno e balcone.
- PropostaOffro
- ContrattoVendita
- Prezzo450.000,00 €
- Anno1970
- Vani8
- Numero piani1
- Mq giardino1500
- Mq totali300
- Camere4
- Bagni3
- Classe energeticaVa
- Classe energetica (ipe)0.0
- StatoBuono
- AscensoreNo
- CucinaAbitabile
- TerrazzoNo
- GiardinoNd
- CantinaSi
- RiscaldamentoAutonomo
- BoxSi
- ProvinciaReggio nell'emilia
- ComuneQuattro castella
- CodiceEA-BB66FC