9 vani 160mq
Dati annuncio : Vendita Multivani, Maser
Rif. BL17 - NUOVA CASA INDIPENDENTE A MASER
Vendesi a Maser frazione, casa singola, al grezzo avanzato (ora è in fase di costruzione), in zona tranquilla ma vicina ai principali servizi. di 160 mq circa.
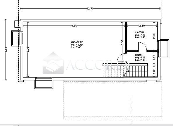
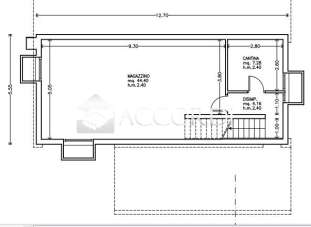
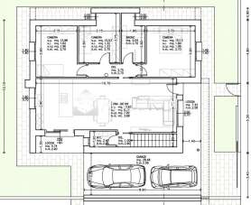
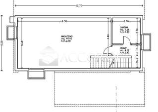
Si sviluppa su due piani, al piano terra: 2 bagni, 3 camere, cucina e soggiorno. Al piano interrato: cantina, taverna e lavanderia.
Grande autorimessa coperta e posto auto esterno.
Fotovoltaico, depuratore e predisposizione per aria forzata.
Giardino privato.
L´immobile è in fase di costruzione.
Si intende precisare che gli indirizzi presenti negli annunci non sono identificativi dell´ubicazione precisa dell´immobile, danno un riferimento solo generico della zona al cliente che ricerca, al fine di tutelare la privacy e riservatezza del venditore.
Per visionare l´immobile o per ricevere ulteriori informazioni contattateci: 0423 1904721.
Le nostre sedi : Montebelluna (TV) - Maser (TV) - Conegliano (TV) - Jesolo (VE). Classe Energetica: non dichiarata
- PropostaOffro
- ContrattoVendita
- Prezzo190.000,00 €
- Vani9
- Numero piani2
- Piano13
- Mq giardino150
- Mq totali160
- Camere3
- Bagni2
- Posti auto2
- Classe energeticaNd
- StatoNuovo
- AscensoreNo
- Tipo costruzioneResidenziale
- CucinaAbitabile
- TerrazzoNo
- GiardinoPrivato
- CantinaSi
- RiscaldamentoAutonomo
- ArrediNon arredato
- BoxBox doppio
- DisponibilitLibero al rogito
- ProvinciaTreviso
- ComuneMaser
- Data17-06-2025 05:03:58
- CodiceEA-8D8079











