affitto san concordio contrada monolocale 150mq
1.000,00 €
0 Piace
0 Piace
Dati annuncio : Affitto affitto, Lucca
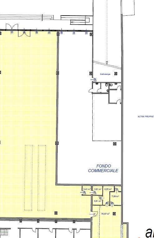
Fondo commerciale a San Concordio di 150 mq al piano terra, unico vano con doppio servizio igienico con antibagno e ripostiglio di 30 mq. A corredo piazzale per posti auto non esclusivo.
CLASSE ENERGETICA: G 290 kWh/m2 a
- PropostaOffro
- ContrattoAffitto
- Prezzo1.000,00 €
- Vani1
- Numero piani2
- Mq totali150
- Classe energeticaG
- Classe energetica (ipe)290.0
- StatoOttimo
- AscensoreNo
- Tipo costruzioneMedio
- RiscaldamentoAutonomo
- PanoramaVista aperta
- PortineriaNo
- ProvinciaLucca
- ComuneLucca
- IndirizzoSan concordio contrada
- Data11-10-2025 06:11:44
- CodiceEA-2AD215

