affitto Via Emilia Ovest 8 vani 540mq
Dati annuncio : Affitto affitto, Modena
RIF. ANNUNCIO: AY411G
N.B.: LA RICHIESTA ECONOMICA È DA CONSIDERARSI INDICATIVA, VERRÀ FORMULATA ESATTAMENTE A SECONDA DELLE EVENTUALI OPERE DA ESEGUIRSI INTERNAMENTE AGLI AMBIENTI. IDONEO ANCHE USO LABORATORIO CON UFFICI, DISPONIBILI DIVERSI PARCHEGGI PER LE ATTIVITÀ.
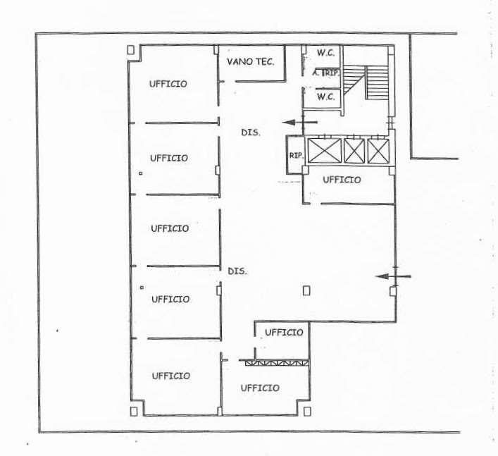
MODENA OVEST - Ad.ze CNA Modena Ovest, in posizione strategica comoda alla viabilità e al casello MO NORD, in stabile commerciale, proponiamo locale idoneo sia puro ufficio che showroom al Piano Secondo e con ben 4 lati a vista. L´immobile si presenta come da planimetria allegata, con divisorie in cartongesso e sarà disponibile Novembre/Dicembre 2025. Il locale, con DOPPIO INGRESSO INDIPENDENTE, è raggiungibile sia da scala interna che da rampa esterna che conduce al livello ove poter parcheggiare anche diverse automobili. Insegne e disponibilità di pubblicità visIbile dalla via Emilia. L´impiantistica nuova caldo/freddo indipendente sarà a carico della proprietà in base alle esigenze specifiche. Locazione annua indicativa: EURO 46.000/anno + IVA
Per info:
059 2929690 STUDIO
[email protected]
realcasamodena.it
CLASSE ENERGETICA: G
Accessori:
Aria Condizionata, Doppi Vetri, Doppio Ingresso, Ingresso Indipendente, Rete Dati, Ripostiglio
- PropostaOffro
- ContrattoAffitto
- Prezzo3.800,00 €
- Vani8
- Piano1
- Mq totali540
- Bagni2
- Classe energeticaG
- StatoBuono
- AscensoreNo
- Tipo costruzioneMedio
- RiscaldamentoAutonomo
- ArrediNon arredato
- PanoramaVista aperta
- AccessoriAria condizionata, doppi vetri, doppio ingresso, ingresso indipendente, rete dati, ripostiglio
- PortineriaNo
- ProvinciaModena
- ComuneModena
- IndirizzoVia emilia ovest
- Data08-08-2025 05:45:02
- CodiceEA-580117






