Albergo 1050mq

Dati annuncio : Vendita Albergo, Ragusa
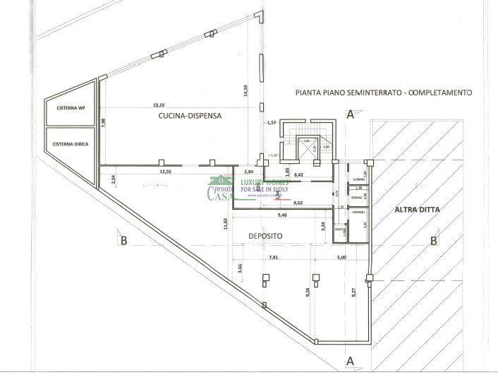
La Pronto Casa vende in zona residenziale particolare struttura turistico/ricettiva, allo stato rustico, sull´impronta del tema del moulin rouge parigino. La struttura situata su un lotto di mq 3000 circa si compone al piano terra da un ambiente di mq 350 circa progettato per la realizzazione di una sala ricevimenti di 200 posti a sedere interni, oltre alla veranda coperta con tettoia in legno di ulteriori mq 350 circa e patio con piccolo palco per l´intrattenimento, il piano seminterrato, di ugual misura, si presta invece ad essere utilizzato per le cucine ed i servizi per il personale o per la realizzazione di una Spa, il seminterrato presenta anche uno spazio esterno ad uso parcheggio clienti o scarico/carico merci di mq 800 circa. Completano il cespite il primo piano con hall e undici camere ciascuna con bagno privato ed il giardino con statue decorative, fontana e mulino scenico funzionante. Predisposizione ascensore a servizio di tutti i piani. L´offerta include una villetta allo stato rustico su tre livelli, con ingresso indipendente da realizzare. Posizione strategica equidistante dalla rinomata Marina di Ragusa e dall´aeroporto di Comiso. Per maggiori informazioni contattare lo 0932/257603 o visitare il nostro sito
For sale in a residential area, a particular tourist-accommodation structure, in a rustic state, on the theme of the Parisian Moulin Rouge. The structure located on a plot of approximately 3000 m2 is composed on the ground floor of an area of approximately 350 m2 prepared for the construction of a reception room with 200 internal seats, in addition to the covered veranda with a wooden roof of approximately a further 350 m2. and patio with small stage for entertainment, the basement, of the same size, can be used for kitchens and staff services or for the construction of a Spa, the basement also has an outdoor space for customer parking or unloading/ cargo loading of approximately 800 m2. The heritage is completed by the first floor with entrance and eleven bedrooms each with private bathroom and the garden with decorative statues, fountain and spectacular working mill. Elevator provision serving all floors. The offer includes a rustic villa on three levels, with an independent entrance soon to be built. Strategic position equidistant from the renowned Marina di Ragusa and Comiso airport. For more information contact 0932/257603 or visit our website
- PropostaOffro
- ContrattoVendita
- Prezzo4.200.000,00 €
- Mq totali1050
- Camere11
- Bagni11
- CucinaCucina abitabile
- GiardinoPrivato
- Tipologia immobileAlbergo
- ProvinciaRagusa
- ComuneRagusa
- Data18-08-2025 05:21:08
- CodiceEA-A149EA











