Appartamento 129mq

Dati annuncio : Vendita Appartamento, Seriate
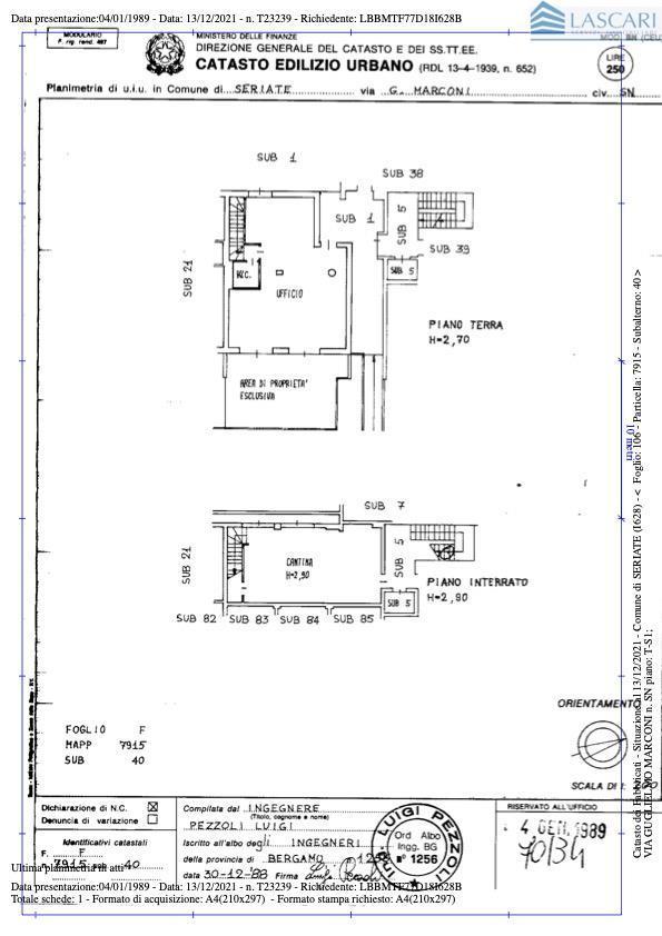
Attualmente l´immobile ha destinazione d´uso ufficio, viene posto in vendita con cambio di destinazione d´uso a residenziale da effettuare prima del rogito. L´immobile viene venduto allo stato di fatto. In zona semicentrale in complesso immobiliare degli anni 80 prevalentemente ad uso residenziale ufficio di mq. 76 così suddiviso: ingresso indipendente posto al piano terra composto da 3 vani, bagno con annesso giardino di mq. 34, collegato da scala interna al piano seminterrato di mq. 53 luminoso archivio. Attualmente l’ufficio è suddiviso con pareti mobili, si trova in buono stato di manutenzione è dotato di impianto elettrico-luci e impianto di riscaldamento autonomo. E´ incluso un box al piano seminterrato. Il contesto è dotato di un’ampia disponibilità di parcheggio ad uso pubblico. Vende Società.
- PropostaOffro
- ContrattoVendita
- Prezzo175.000,00 €
- Mq totali129
- Camere3
- Bagni1
- Classe energeticaE
- Classe energetica (ipe)5225
- Classe energetica (unità di misura)Kwh/m³a
- StatoBuono stato
- Tipo costruzioneResidenziale
- GiardinoPrivato
- RiscaldamentoAutonomo
- Tipologia immobileAppartamento
- ProvinciaBergamo
- ComuneSeriate
- Data14-08-2025 06:00:41
- CodiceEA-AE46FF











