Appartamento 140mq
Dati annuncio : Vendita Appartamento, Genova
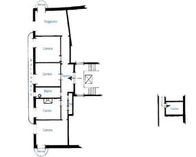
Foce Albaro comodi 140 mq. abitabili subito vista aperta Appartamento in stabile signorile, comodo e ben tenuto. Posto al piano 5 l´appartamento si mostra ordinato anche se di taglio vecchiotto e che ben si presta ad ammodernamenti pratici. La disposizione interna consiste in un ingresso corridoio, salone, cucina abitabile, tre camere da letto, bagno completo, grande ripostiglio. Un balcone e una balconata completano la proprietà per un grande sfogo esterno. L´esposizione di cui gode l´appartamento è ad sud ed est, aperto e luminoso. Le spese di gestione del condominio ammontano ad € 1.400/anno, riscaldamento centralizzato. La disponibilità è immediata. Gentili Clienti, abbiamo cercato di essere i più chiari possibile nella descrizione dell´immobile che vi interessa. Sé tuttavia aveste bisogno di maggiori delucidazioni o migliori spiegazioni, vi preghiamo di non esitare a contattarci. Saremo sempre lieti di esservi d´aiuto. Siamo agenti immobiliari da lunghissimo tempo e questo ci ha insegnato a non dare niente per scontato. Per visitare l´immobile contattateci liberamente saremo sempre a vostra disposizione. Saremo inoltre sempre pronti a valutare il vostro immobile nei momenti a voi più comodi senza alcuna spesa od impegno. Da oltre 30 anni un team di referenziati professionisti, interni ed esterni, assistiti anche da società specializzate nei singoli settori, garantisce ai nostri clienti soluzioni ottimizzate per la valorizzazione dei propri investimenti immobiliari. Dalla compravendita del singolo appartamento alle operazioni di piccoli e grandi progetti di sviluppo immobiliare residenziale e alberghiero, in Italia e all’estero, ogni consulenza viene effettuata con l’impiego delle risorse più qualificate finalizzate al raggiungimento degli obiettivi prefissati. Terziaria RE 010591593 - SC8857410
- PropostaOffro
- ContrattoVendita
- Prezzo249.000,00 €
- Anno1960
- Numero piani5
- Piano4
- Mq totali140
- Bagni1
- Balconi1
- Terrazzi1
- Classe energeticaG
- Classe energetica (ipe)175 kwh/m2
- StatoBuono
- AscensoreNo
- CucinaAbitabile
- GiardinoNo
- CantinaNo
- RiscaldamentoAutonomo
- ArrediNo
- BoxNo
- Spese condominiali100
- Cadenza spese condominialiMensili
- ProvinciaGenova
- ComuneGenova
- Data18-08-2025 06:08:45
- CodiceEA-0E02BF











