Appartamento 5 vani 130mq

Dati annuncio : Vendita Appartamento, Ragusa
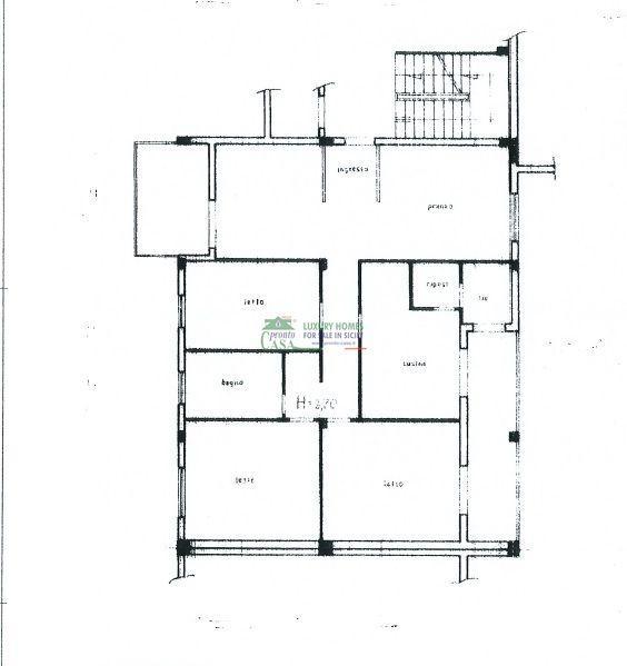
Pronto Casa Group propone in vendita, nei pressi di Viale Europa, ampio e luminoso appartamento di circa 130 mq, sito al quinto piano con ascensore, all’interno di uno stabile antisismico edificato nel 1987 e con prospetto esterno recentemente ristrutturato.
L’immobile gode di una generosa metratura e si presenta in fase di ristrutturazione, con distribuzione termica ed idrica già realizzate, predisposizione per impianto a metano e predisposizione climatizzazione nella zona notte.
CARATTERISTICHE PRINCIPALI:
L’appartamento è così composto:
- ingresso
- spazioso soggiorno con accesso diretto alla veranda
- cucina abitabile separata;
- due servizi, di cui uno con lavanderia;
- due camere da letto;
- studio
- ripostiglio esterno, ubicato nel vano scala.
SPAZI ESTERNI:
La proprietà gode di una vista panoramica sui due prospetti ed impreziosita da balconi ,accessibili sia dalla zona giorno che dalla camera padronale, e da ampia veranda.
DOTAZIONI E PERTINENZE:
- doppi infissi;
- porzione di sottotetto
- garage di pertinenza;
- due posti auto in cortile (uno libero e uno assegnato);
- predisposizione impianto a metano;
- predisposizione climatizzazione nella zona notte;
- stabile servito da ascensore;
- prospetto recentemente ristrutturato.
L´immobile viene proposto sia allo stato attuale che completamente rifinito, in base alle esigenze dell´acquirente.
Per maggiori informazioni o per fissare una visita, contatta Pronto Casa – Agenzia 1 Ragusa al numero 0932 257603 oppure visita il nostro sito ufficiale.
- PropostaOffro
- ContrattoVendita
- Prezzo105.000,00 €
- Vani5
- Mq totali130
- Camere3
- Bagni2
- Posti auto2
- Classe energeticaF
- StatoRistrutturato
- AscensoreSi
- CucinaCucina abitabile
- Tipologia immobileAppartamento
- ProvinciaRagusa
- ComuneRagusa
- Data23-10-2025 05:38:06
- CodiceEA-8CD688











