Appartamento 5 vani 145mq
Dati annuncio : Vendita Appartamento, Maddaloni
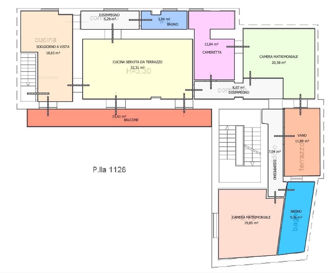
MADDALONI - VIA CONCEZIONE Se ami la centralit, l´ampia metratura su unico livello e le ottime rifiniture, consigliamo la visione di questa affascinante proposta! Nel pieno centro e precisamente in via Concezione, a due passi da scuole, uffici pubblici e negozi di ogni genere, proponiamo in esclusiva la vendita di bellissimo appartamento rifinito con cura e materiali di ottima fattura oltre ad un gradevolissimo gusto. Interamente ristrutturata , la soluzione proposta in vendita ha un´ottima e funzionale distribuzione degli spazi interni Ubicato al piano primo con ingresso autonomo in una corte tranquilla e ben tenuta, l´appartamento cos composto: Ad accoglierci vi un soggiorno a vista da quale accediamo all´ampia e funzionale cucina di oltre 30mq per ospitare pranzi e cene con amici e parenti senza preoccuparsi degli spazi angusti e ristretti. Dalla cucina accediamo a due disimpegni: il primo ci conduce al bagno a servizio della zona giorno; il secondo invece ci conduce alla zona notte composta da due camere matrimoniali, cameretta, vano spogliatoio, e bagno con vasca idromassaggio. Sia la cucina che il soggiorno sono serviti da un balcone di circa 16 mq, mentre l´ottima tripla esposizione, sud/est/ovest, dona all´immobile luminosit diurna costante. Il tutto , come gi accennato, rifinito con materiali di pregio e gradevolissimo gusto. Per info e/o appuntamenti contattaci, allo 0823.436914 Seguici per restare sempre aggiornato su Fb: Eccocasa Maddaloni Instagram: Eccocasa_ Maddaloni - SC9540021
- PropostaOffro
- ContrattoVendita
- Prezzo165.000,00 €
- Vani5
- Numero piani2
- Piano1
- Mq totali145
- Bagni2
- StatoOttimo
- AscensoreNo
- CantinaNo
- RiscaldamentoAutonomo
- ArrediNo
- BoxNo
- Cadenza spese condominialiAnnuali
- ProvinciaCaserta
- ComuneMaddaloni
- Data17-12-2025 05:30:53
- CodiceEA-7A4FFF











