Appartamento bilocale 40mq

Dati annuncio : Vendita Appartamento, Lodi
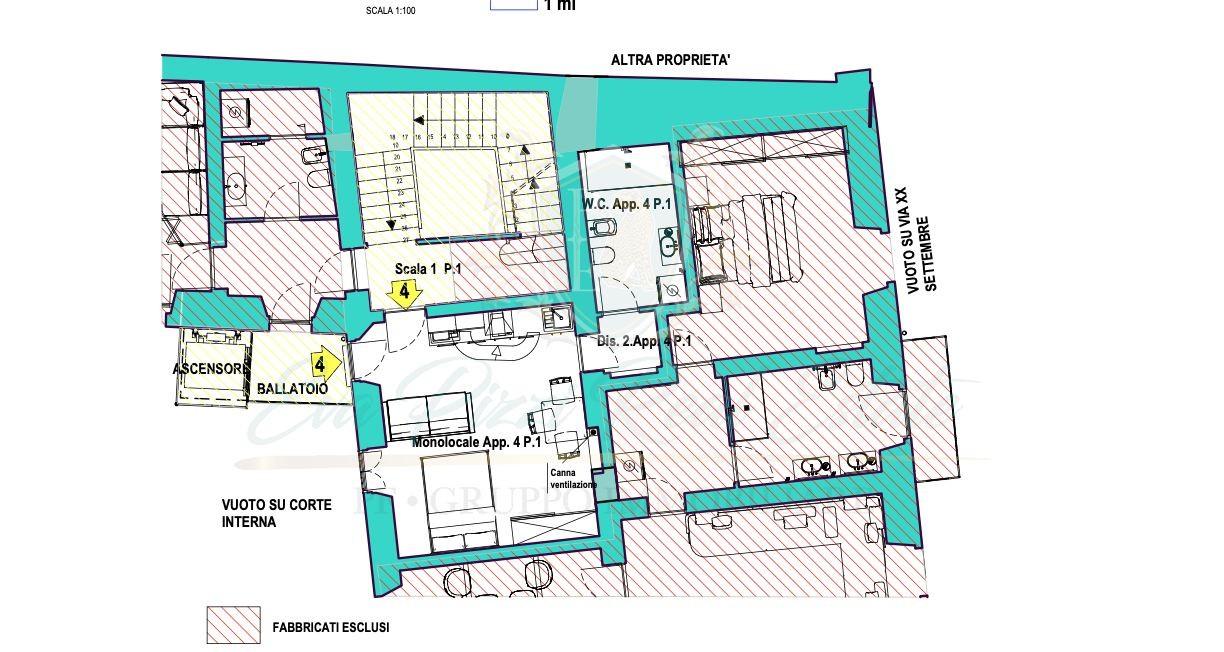
Lodi, in via XX Settembre nel cuore della città, nuovo intervento di ristrutturazione totale. In uno dei contesti più ricercati del centro città, intervento con consegna prevista per l’autunno 2026. L’appartamento di 40 mq è posto al primo piano con ascensore ed è così disposto: soggiorno con cucina a vista, camera da letto matrimoniale con soppalco e bagno. L’intervento è orientato all’efficienza energetica e alla sostenibilità: l’immobile sarà in classe A, dotato di impianto di riscaldamento e raffreddamento a pavimento, VMC, serramenti con triplo vetro, videocitofono, cassaforte, impianto fotovoltaico da 3KW, GAS FREE, porta blindata, zanzariere, persiane in legno, pavimento gres o parquet, impianto elettrico serie Bticino living now, predisposizione allarme e colonnine in tutti i box auto per veicoli elettrici.
Possibilità di scegliere finiture extra capitolato.
Per maggiori informazioni e visionare i progetti e il capitolato lavori chiama al +39 366-4461059 oppure 0371-1903125.
- PropostaOffro
- ContrattoVendita
- Prezzo140.000,00 €
- Vani2
- Mq totali40
- Camere1
- Bagni1
- Classe energeticaA1
- Classe energetica (ipe)1015
- Classe energetica (unità di misura)Kwh/m²a
- AscensoreSi
- CucinaCucina a vista
- Tipologia immobileAppartamento
- ProvinciaLodi
- ComuneLodi
- Data16-01-2026 05:52:13
- CodiceEA-BC997C











