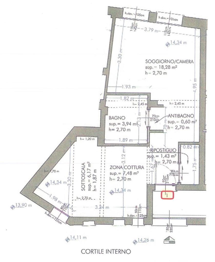
Appartamento bilocale 43mq
240.000,00 €

0 Piace
0 Piace
Dati annuncio : Vendita Appartamento, Pietra Ligure
Pietra Ligure, posto al piano terra di un complesso turistico dotato di piscina condominiale, si vende un bilocale ristrutturato con allegato un posto auto di proprietà esclusiva. Come anticipato l´appartamento é stato ristrutturato ma non arredato, dista a trecento metri dalla spiaggia con percorso totalmente pianeggiante.
- PropostaOffro
- ContrattoVendita
- Prezzo240.000,00 €
- Vani2
- Mq totali43
- Camere1
- Bagni1
- Classe energeticaC
- Classe energetica (ipe)10608
- Classe energetica (unità di misura)Kwh/m²a
- StatoRistrutturato
- CucinaAngolo cottura
- ArrediArredato
- Tipologia immobileAppartamento
- ProvinciaSavona
- ComunePietra ligure
- Data02-12-2025 06:25:59
- CodiceEA-566D84











