Appartamento bilocale 45mq
239.000,00 €

0 Piace
0 Piace
Dati annuncio : Vendita Appartamento, Roma
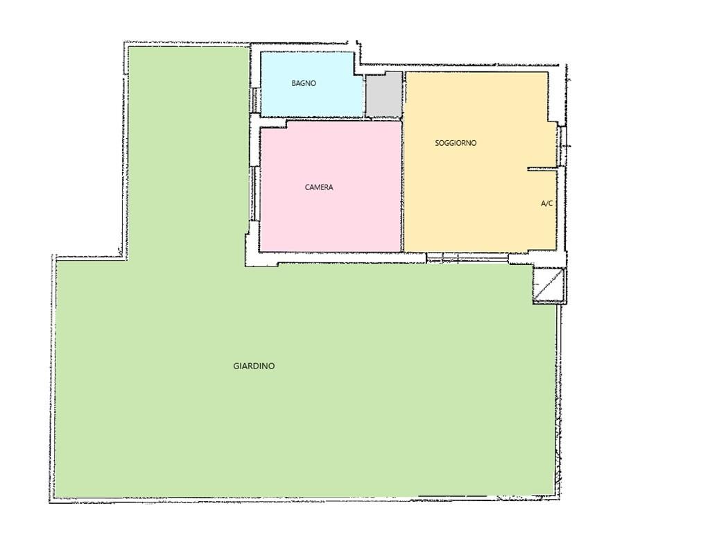
Osteria del Curato, in Via Sant´ Agata di Esaro, siamo lieti di proporre la vendita di uno splendido bilocale posto al piano terra di una moderna palazzina in cortina con ascensore.
L´immobile è composto da: ingresso sul soggiorno con cucina a vista, camera, bagno e grande giardino pavimentato coperto in parte da pergotenda.
Completa la proprietà un ampio box auto .
- PropostaOffro
- ContrattoVendita
- Prezzo239.000,00 €
- Vani2
- Mq totali45
- Camere1
- Bagni1
- Classe energeticaD
- AscensoreSi
- CucinaCucina a vista
- GiardinoPrivato
- Tipologia immobileAppartamento
- ProvinciaRoma
- ComuneRoma
- Data26-11-2025 06:33:05
- CodiceEA-1E4377











