Appartamento bilocale 55mq

Dati annuncio : Affitto Appartamento, Milano
STAZIONE CENTRALE - Via Fabio Filzi 45 - Proponiamo in affitto in elegante palazzina anni ´60 con servizio di portineria ed ascensore un bilocale completamente arredato.
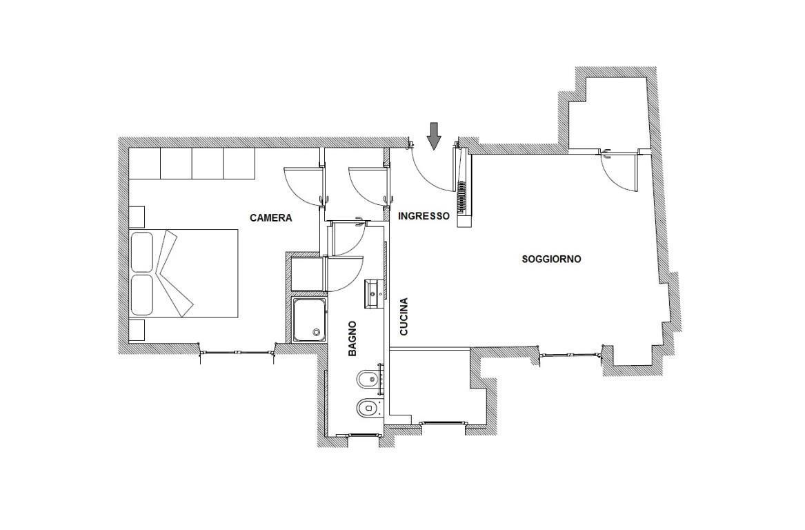
L´immobile si trova al 3° piano ed è composto da ingresso, soggiorno con cucina a vista e accesso al balcone, camera da letto, bagno finestrato e ampia cabina armadio/ripostiglio. La cucina è attrezzata di piastra ad induzione, frigorifero, forno a microonde ed è corredato di stoviglie. Il riscaldamento è centralizzato ed è presente l´aria condizionata. Il bagno è completamente ristrutturato con sanitari sospesi e lavatrice/asciugatrice. Pavimenti in parquet. Ripostiglio in quota e cantina di pertinenza.
Zona servita da mezzi di superficie, metro e stazione Centrale. Contratto di locazione transitorio da 6 a 18 mesi.
- PropostaOffro
- ContrattoAffitto
- Prezzo1.000,00 €
- Vani2
- Mq totali55
- Camere1
- Bagni1
- Classe energeticaG
- Classe energetica (ipe)175
- Classe energetica (unità di misura)Kwh/m²a
- StatoRistrutturato
- CucinaCucina a vista
- ArrediArredato
- Tipologia immobileAppartamento
- ProvinciaMilano
- ComuneMilano
- Data19-09-2025 05:07:23
- CodiceEA-9C5401











