Appartamento bilocale 56mq

Dati annuncio : Vendita Appartamento, Milano
MONUMENTALE/NUOVO SCALO FARINI
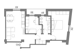
Nel cuore di un quartiere in forte trasformazione, a ridosso del nuovo Scalo Farini, nasce un progetto di riqualificazione che restituisce nuova vita a uno stabile del 1950, completamente rinnovato con interventi strutturali ed efficientamento energetico. L’edificio è stato oggetto di una riqualificazione completa con cappotto termico, facciate ventilate, infissi di nuova generazione e restyling totale delle parti comuni, con nuovi ascensori e finiture di pregio. Proponiamo in vendita un attico di mq 56 ca., composto da zona living con cucina abitabile, una camera da letto e bagno. La posizione è strategica, a pochi passi da Corso Sempione e Piazza Firenze, servita dalla metropolitana M5 Cenisio, autobus e tram, e dotata di tutti i principali servizi. La via, tranquilla e poco trafficata, garantisce un ambiente silenzioso e ben collegato al resto della città. Grazie alla posizione e alle caratteristiche dell’immobile, si tratta di una soluzione ideale sia come abitazione principale sia come investimento da mettere a reddito, con un ottimo potenziale di rivalutazione nel tempo. Richiesta € 394.000. APE: B - KWh/m2a 61
- PropostaOffro
- ContrattoVendita
- Prezzo394.000,00 €
- Vani2
- Mq totali56
- Camere1
- Bagni1
- Classe energeticaB
- Classe energetica (ipe)61
- Classe energetica (unità di misura)Kwh/m²a
- CucinaCucina a vista
- Tipologia immobileAppartamento
- ProvinciaMilano
- ComuneMilano
- Data04-06-2025 06:19:48
- CodiceEA-CCAA19







