Appartamento bilocale 73mq

Dati annuncio : Vendita Appartamento, Cesenatico
CESENATICO - CENTRO STORICO
Nuovo cantiere che offre appartamenti moderni e luminosi, perfetti per ogni esigenza abitativa sia turistica che residenziale.
Ogni unità è progettata con passione e attenzione al dettaglio, per garantire comfort e qualità in ogni momento della tua vita.
Le caratteristiche principali di questo nuovo complesso immobiliare sono: design innovativo, finiture di qualità, ampi spazi esterni ed una posizione strategica.
12 unità disponili con diverse caratteristiche, tutte con posto auto e cantina.
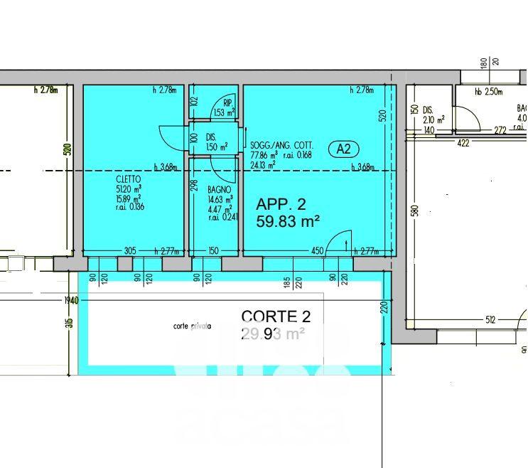
CASETTA 2 PT :
Casetta al piano terra con giardino - 2 locali - 72,76 mq
Graziosa casetta indipendente nella corte interna, composta da ingresso privato su corte di proprietà, soggiorno con cucina a vista, disimpegno, bagno, ripostiglio-lavanderia, camera da letto matrimoniale.
Cantina e possibilità di posto auto di proprietà.
Per informazioni ACASA_Cesenatico, Viale Roma 24. tel. 0547-1952930
Le presenti informazioni non costituiscono elemento contrattuale
- PropostaOffro
- ContrattoVendita
- Prezzo320.000,00 €
- Vani2
- Mq totali73
- Camere1
- Bagni1
- Classe energeticaA4
- Classe energetica (unità di misura)Kwh/m²a
- CucinaCucina a vista
- GiardinoPrivato
- Tipologia immobileAppartamento
- ProvinciaForli-cesena
- ComuneCesenatico
- Data25-12-2025 05:10:53
- CodiceEA-ADC446









