Appartamento quadrilocale 120mq

Dati annuncio : Vendita Appartamento, Caprino Bergamasco
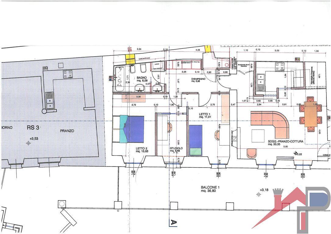
Caprino Bergamasco in posizione centralissima presso stabile di recente ristrutturazione sia interna che esterna , pari al nuovo, si propone al 1° piano un signorile e ampio appartamento con grande loggiato VENDUTO AL RUSTICO, con possibilità di realizzo di spazioso appartamento di 4 locali composto da: ingresso, ampio soggiorno con uscita diretta sul loggiato di Mq. 36,80 cucina, disimpegno sfruttabile, 2 camere letto, 1 studio, bagno. Possibilità di acquisto a parte di autorimessa singola o doppia; L´immobile é completamente ristrutturato a nuovo con caratteristiche della pietra e del legno, viene venduto rustico all´interno in modo da dare possibilità di personalizzazione degli interni, presenta caratteristici soffitti con travi in legno a vista e inserti di pietra a vista, mentre l´esterno e le parti comuni sono completamente rifinite. Ottima la posizione centrale ma tranquilla nel caratteristico centro paese di Caprino Bergamasco. Possibilità di ampliamento per chi necessita di grandi spazi acquistando anche il piano superiore mansardato di pari metratura che consente un unione dei 2 piani e degli spazi molto ampi.
L´immobile ha caratteristiche per essere portato in classe energetica B. Ottima soluzione di risparmio per chi é in grado di fare direttamente i lavori di finitura, ma soprattutto per chi cerca un´abitazione da personalizzare in base alle proprie esigenze.
- PropostaOffro
- ContrattoVendita
- Prezzo100.000,00 €
- Vani4
- Mq totali120
- Camere3
- Bagni1
- StatoRistrutturato
- CucinaCucina abitabile
- Tipologia immobileAppartamento
- ProvinciaBergamo
- ComuneCaprino bergamasco
- Data01-10-2025 06:06:55
- CodiceEA-CC439A











