Appartamento quadrilocale 123mq

Dati annuncio : Vendita Appartamento, Sovico
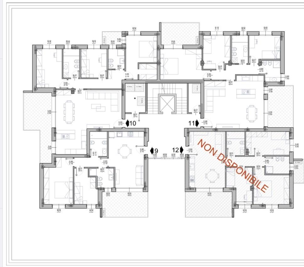
RIF. 12 Sovico Le Residenze di Villa Piera di nuova costruzione con consegna Marzo 2027 vendiamo bellissimo appartamento posto al secondo piano di una piccola palazzina composto da ingresso, soggiorno, cucina abitabile, 3 camere da letto, doppi servizi, terrazzo e cantina.
Le residenze saranno edificate in classe energetica A4 improntate al risparmio energetico ed al comfort abitativo. Possibilità di scegliere le finiture per una personalizzazione dell’appartamento unica. Possibilità di box doppio in lunghezza euro 30.000 box doppio in larghezza euro 40.000 per informazioni Roberto Galletti 3356352409 e-mail [email protected]
RIF. 10 Sovico Le Residenze di Villa Piera di nuova costruzione con consegna Marzo 2027 vendiamo bellissimo appartamento posto al secondo piano di una piccola palazzina composto da ingresso, soggiorno, cucina abitabile, 3 camere da letto, doppi servizi, terrazzo e cantina.
Le residenze saranno edificate in classe energetica A4 improntate al risparmio energetico ed al comfort abitativo. Possibilità di scegliere le finiture per una personalizzazione dell’appartamento unica. Possibilità di box doppio in lunghezza euro 30.000 box doppio in larghezza euro 40.000 per informazioni Roberto Galletti 3356352409 e-mail [email protected]
- PropostaOffro
- ContrattoVendita
- Prezzo310.000,00 €
- Vani4
- Mq totali123
- Camere3
- Bagni2
- Classe energeticaA4
- Classe energetica (ipe)145
- Classe energetica (unità di misura)Kwh/m²a
- StatoNuova costruzione
- CucinaCucina abitabile
- BoxBox doppio
- Tipologia immobileAppartamento
- ProvinciaMonza e brianza
- ComuneSovico
- Data26-12-2025 05:10:07
- CodiceEA-39ADBB











