Appartamento quadrilocale 139mq

Dati annuncio : Vendita Appartamento, Villasanta
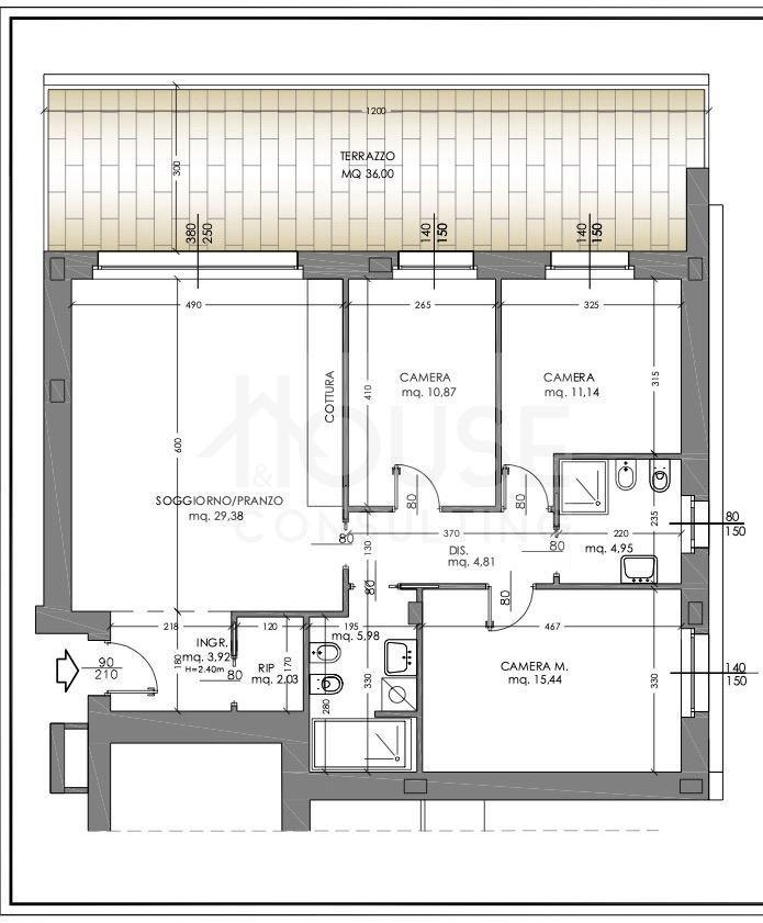
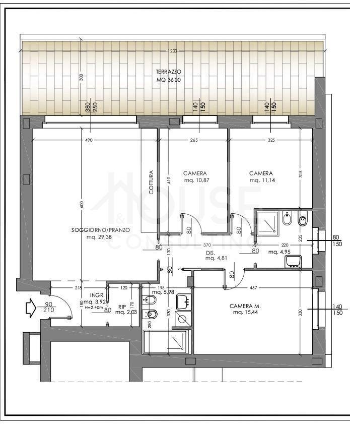
Residenza Le Magnolie – Appartamento Rif. 6
Moderno quadrilocale di 114 mq con terrazzo da 36 mq, situato al piano primo della prestigiosa Residenza Le Magnolie di via Doria di Villasanta.
Un’abitazione moderna e funzionale, caratterizzata da luminosità, finiture di pregio e un elevato comfort abitativo.
Composizione:
- Ingresso
- Ampio soggiorno/pranzo con vetrata scorrevole e accesso diretto al terrazzo
- Cucina a vista
- Camera matrimoniale
- Due camere
- Due Bagni
- Ripostiglio
Gli interni sono personalizzabili grazie a un capitolato di alta qualità, che prevede materiali ricercati come ceramiche di grandi formati (fino a 90x90 cm)
Le residenze sono progettate secondo i più moderni standard di efficienza energetica e comfort:
- Riscaldamento a pavimento autonomo
- Predisposizione per ventilazione meccanica controllata, condizionamento e deumidificazione
- Pannelli fotovoltaici
- Serramenti ad alte prestazioni con tapparelle elettriche e zanzariere
Completano la proprietà una cantina e la possibilità di box singolo o doppio con serranda automatica.
Per informazioni:
House & Consulting Arcore – Tel. 039 6012742
www.hcarcore.it
Le immagini hanno scopo puramente illustrativo e non costituiscono elemento contrattuale.
Le misure riportate sono indicative e possono subire variazioni in fase di realizzazione.
- PropostaOffro
- ContrattoVendita
- Prezzo470.000,00 €
- Vani4
- Piano1
- Mq totali139
- Camere3
- Bagni2
- Classe energeticaA+
- Classe energetica (ipe)15
- Classe energetica (unità di misura)Kwh/m²a
- CucinaCucina a vista
- TerrazzoSi
- BoxBox singolo
- Tipologia immobileAppartamento
- ProvinciaMonza e brianza
- ComuneVillasanta
- Data07-11-2025 05:27:41
- CodiceEA-44EC21










