Appartamento quadrilocale 76mq

Dati annuncio : Vendita Appartamento, Bolano
-Rif.5405- Proponiamo IN ESCLUSIVA a Ceparana, in zona comoda e servita – con farmacia, tabacchino, bar e a un solo minuto dal centro – un appartamento situato in una palazzina composta da sole tre unità abitative.
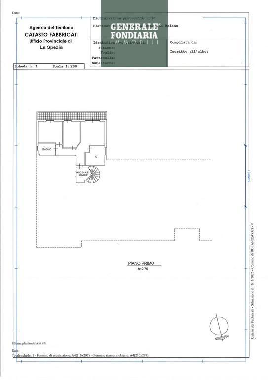
L’ingresso si apre su un ampio disimpegno che conduce alla cucina e al soggiorno abitabile, entrambi molto luminosi e con accesso alla lunga balconata dotata di tenda da sole. Un secondo disimpegno accompagna alla zona notte, dove troviamo due camere da letto, anch’esse con uscita sulla balconata, e un bagno finestrato.
L’esposizione risulta ottima, garantendo luce e comfort per tutta la giornata.
Sono presenti vicino all´ingresso della palazzina diversi parcheggi scoperti, per più auto o ospiti.
Possibilità di acquistare il box di 24 mq ad Euro 20.000,00.
L´indirizzo sull´annuncio è approssimativo. Per visionare l´immobile contattateci al Tel. 0187939990, cell.3456023380,Saremo lieti di fissare un appuntamento. Generale Fondiaria Immobili, Ceparana Via Italia 34/36.
- PropostaOffro
- ContrattoVendita
- Prezzo128.000,00 €
- Vani4
- Mq totali76
- Camere2
- Bagni1
- Classe energeticaG
- CucinaCucina abitabile
- Tipologia immobileAppartamento
- ProvinciaLa spezia
- ComuneBolano
- Data14-11-2025 06:04:54
- CodiceEA-152DCB











