Appartamento quadrilocale 84mq

Dati annuncio : Vendita Appartamento, Vallefoglia
“Proposta accettata con mutuo in valutazione. Visite momentaneamente sospese.”
Rif. 4419 - MONTECCHIO di Vallefoglia (PU) – In zona tranquilla e ben servita, proponiamo in vendita un luminoso appartamento al secondo piano di una palazzina condominiale, perfetto per chi cerca comodità e funzionalità.
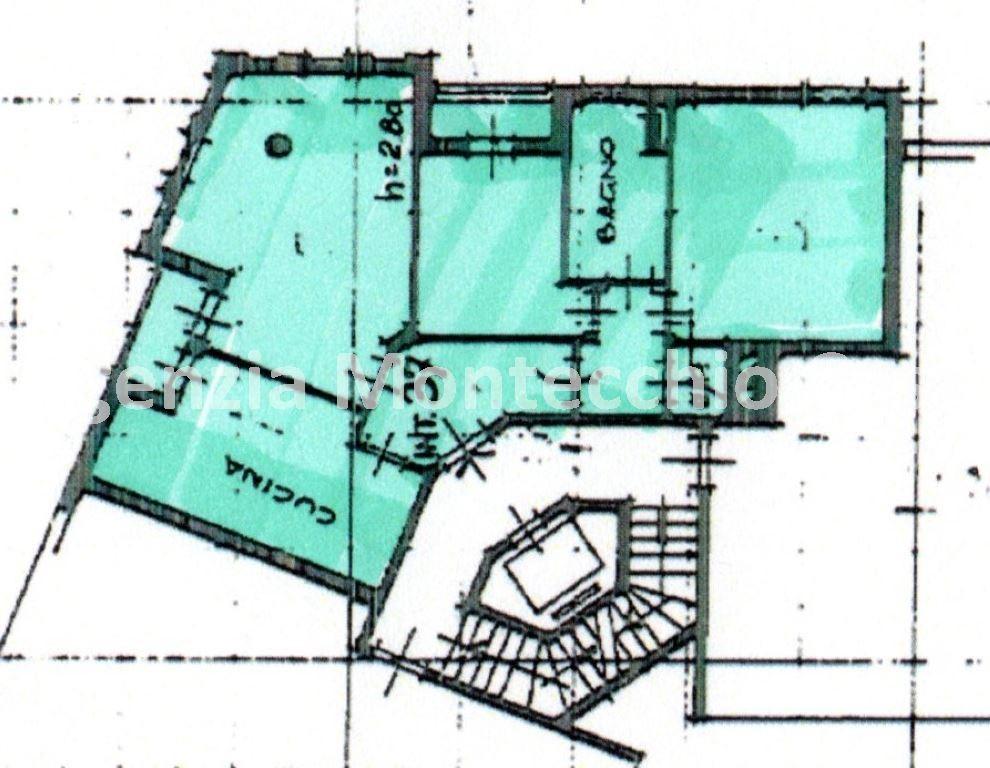
L’immobile è composto da un’accogliente zona giorno con ingresso, soggiorno e cucina. La zona notte offre due camere da letto, un bagno finestrato, un pratico ripostiglio e ben due balconi, perfetti per godersi l’aria aperta.
Completano la proprietà un posto auto coperto e una cantina al piano seminterrato.
Il riscaldamento è autonomo e le spese condominiali contenute, circa € 50 mensili, includono anche il consumo dell’acqua.
Una soluzione interessante sia per famiglie che per investimento!
Classe energetica F ipe 135,57 kWh/mq. anno
L’ubicazione in mappa non rispecchia per questione di privacy l’esatta posizione dell’immobile.
La superficie indicata è intesa come superficie commerciale dell´insieme.
Contattaci subito per ricevere maggiori informazioni
- PropostaOffro
- ContrattoVendita
- Prezzo120.000,00 €
- Vani4
- Mq totali84
- Camere2
- Bagni1
- Balconi2
- Classe energeticaF
- Classe energetica (ipe)13557
- Classe energetica (unità di misura)Kwh/m²a
- CucinaCucina abitabile
- Tipologia immobileAppartamento
- ProvinciaPesaro e urbino
- ComuneVallefoglia
- Data06-12-2025 06:08:35
- CodiceEA-824539











