Appartamento quadrilocale 90mq
Dati annuncio : Vendita Appartamento, Maddaloni
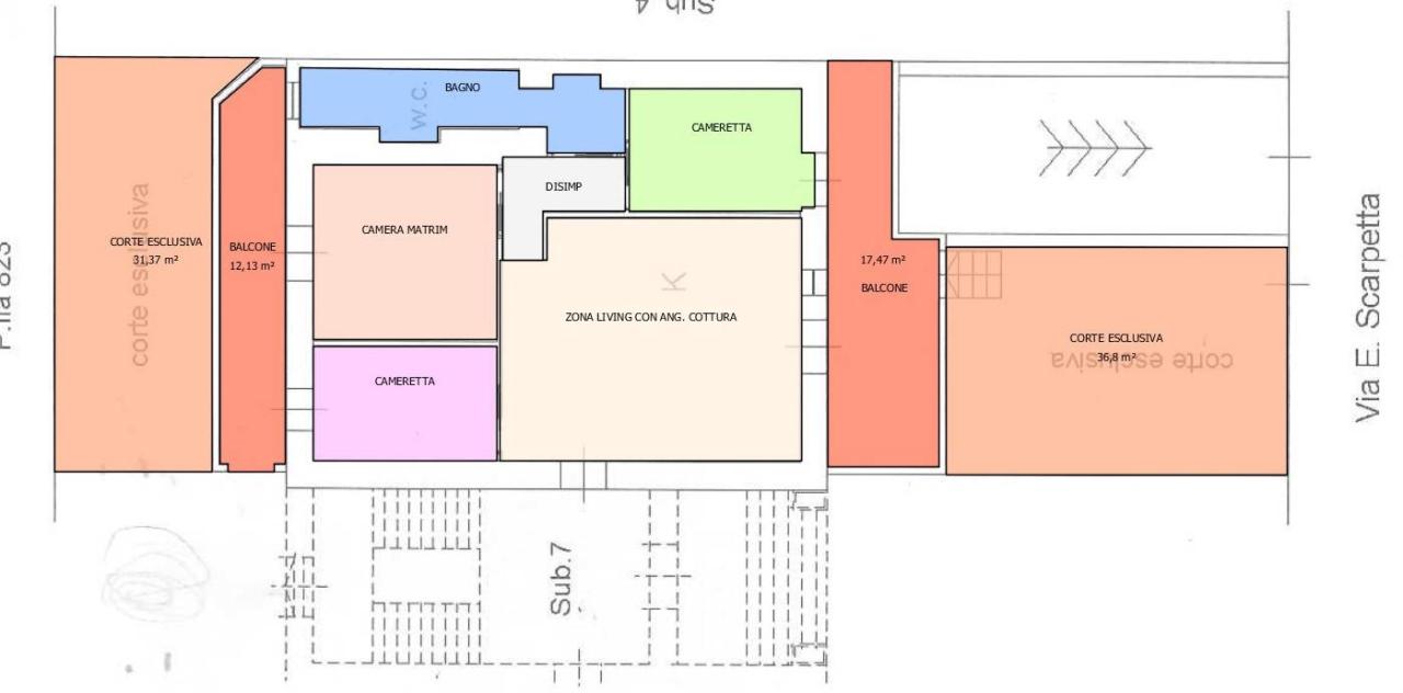
MADDALONI - VIA E. SCARPETTA (A POCHISSIMI METRI INGRESSO VARIANTE CAPUA/MADDALONI Per chi desidera vivere in un ambiente confortevole e ben curato, proponiamo una fantastica opportunit di acquisto. Questo appartamento in vendita a Maddaloni si presenta in ottime condizioni e offre spazi generosi e ben distribuiti. Situato al piano rialzato di un edificio di due piani, gode di una posizione privilegiata che garantisce privacy e tranquillit. L´immobile, libero al rogito, si estende su una superficie totale di 90 metri quadrati, suddivisi in 4 locali, tra cui 3 camere da letto, ideali per ospitare una famiglia o per chi ha bisogno di spazio aggiuntivo per il lavoro o gli hobby. L´appartamento dotato di un bagno moderno e funzionale, completo di ogni comfort e di un´ampia zona living con cucina a vista, che regala un´atmosfera conviviale e accogliente essendo servita da un terrazzo a livello e dalla corte esclusiva antistante con entrata indipendente sia carrabile che pedonale, ideali per godere di momenti di relax all´aperto o per organizzare cene e pranzi durante la bella stagione. Gli ambienti sono luminosi ed ariosi grazie all´ottima doppia esposizione EST/OVEST che garantisce una buona illuminazione naturale durante tutta la giornata. La propriet dispone di un sistema di riscaldamento autonomo a radiatori , alimentato a metano, che garantisce un confort abitativo ottimale in ogni periodo dell´anno. Lo stato di conservazione dell´immobile ottimo, grazie alla cura e alla manutenzione costante da parte dei proprietari. L´appartamento viene venduto non arredato, offrendo la possibilit di personalizzare gli spazi secondo i propri gusti e le proprie esigenze. A completare la proposta, vi il 50% dell´intero piano seminterrato, comodissimo per il parcheggio della tua auto. Situato in una zona residenziale di Maddaloni, comoda per raggiungere i principali servizi e le vie di comunicazione, questo appartamento rappresenta una soluzione ideale per chi desidera vivere in un ambiente confortevole e ben servito. Non perdere l´occasione di diventare il nuovo proprietario di questo immobile e di godere di tutti i suoi pregi. Per visionarla, contattaci allo 0823.436914 per concordare un appuntamento! Seguici, per essere aggiornato in tempo reale su: fb: Eccocasa Maddaloni Instagram: eccocasa_maddaloni - SC9346150
- PropostaOffro
- ContrattoVendita
- Prezzo160.000,00 €
- Vani4
- Numero piani2
- PianoR
- Mq terrazzo37
- Mq totali90
- Bagni1
- StatoOttimo
- AscensoreNo
- CantinaNo
- RiscaldamentoAutonomo
- ArrediNo
- DisponibilitLibero al rogito
- Cadenza spese condominialiAnnuali
- ProvinciaCaserta
- ComuneMaddaloni
- Data14-10-2025 05:50:46
- CodiceEA-8DC201









