Appartamento trilocale 103mq
250.000,00 €

0 Piace
0 Piace
Dati annuncio : Vendita Appartamento, Lissone
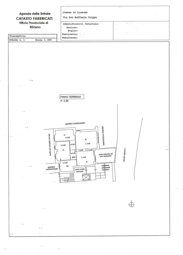
Nel pieno centro del comune di Lissone, comodo ai pedoni e alle auto, con facilità di parcheggio, proponiamo al piano terra ampio trilocale completamente ristrutturato a nuovo e mai abitato, composto da ingresso su grande soggiorno con cucina a vista, due camere e ampio bagno finestrato. All´unità si accede in modo indipendente dal condominio attraverso un gradevole terrazzo di circa 15 mq. Completa la proprietà ampio box singolo pertinenziale al piano S1 di circa 18 mq. al prezzo di euro 25.000,00. Termoautonomo, porta blindata, inferriate di sicurezza. L´appartamento risulta gradevolmente circondato dal giardino condominiale. Per ulteriori informazioni e/o visite contattateci al n.039.2450828 - www.deltacase.net - [email protected]
- PropostaOffro
- ContrattoVendita
- Prezzo250.000,00 €
- Vani3
- Mq totali103
- Camere3
- Bagni1
- StatoRistrutturato
- CucinaCucina a vista
- BoxBox singolo
- Tipologia immobileAppartamento
- ProvinciaMonza e brianza
- ComuneLissone
- Data12-12-2025 05:13:47
- CodiceEA-EC5273




