Appartamento trilocale 107mq

Dati annuncio : Vendita Appartamento, Casatenovo
La Residenza Parco Village rappresenta una proposta abitativa moderna ed efficiente, ideale per chi cerca una soluzione sostenibile e di qualità, nelle immediate vicinanze del centro paese.
CARATTERISTICHE:
• Ascensore che serve i piani;
• Appartamenti di 3 e 4 locali con ampi giardini privati e terrazzi;
• Villette semi-indipendenti;
• Spazi generosi: progettati per garantire comfort e funzionalità.
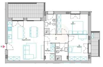
L´ appartamento che vi proponiamo, (il numero 9) si trova all´ultimo piano, ha una superficie di 92 mq. ed è caratterizzato da un ingresso che dà direttamente sulla luminosa zona giorno, con porte finestre che accedono su un terrazzino coperto (mq. 16). Un disimpegno ci conduce nella zona notte, dove troviamo due confortevoli camere da letto, doppi servizi e un praticissimo ripostiglio da utilizzare come lavanderia. Completano la proprietà una cantina e un box doppio in lunghezza da quantificare OBBLIGATORIAMENTE a parte in Euro 35.000,00 con la possibilità di detrarre il 50% del costo di costruzione dalla dichiarazione IRPEF.
PRESTAZIONI TECNICHE:
• Classe energetica A: garantisce consumi ridotti e un impatto ambientale minimo;
• Isolamento termico: cappotto da 12 cm per un’elevata efficienza energetica;
• Isolamento acustico di alto livello per il massimo comfort abitativo;
• Serramenti in PVC con vetri doppi per migliorare l’isolamento e tapparelle motorizzate in alluminio.
TECNOLOGIE IMPIANTISTICHE:
• Pannelli radianti a pavimento a bassa temperatura;
• Produzione di acqua calda sanitaria con contabilizzazione individuale;
• Impianto gas-free: nessun utilizzo di gas nell’edificio;
• Fotovoltaico: impianto sul tetto per una maggiore autonomia energetica;
• Predisposizioni: Impianto di condizionamento e Sistema antintrusione.
CONSEGNA:
• Prevista per il 2026, con abitazioni costruite secondo standard di qualità e consapevolezza ambientale.
La Residenza Parco Village è un’opportunità per vivere in un ambiente moderno, sostenibile ed efficiente, a pochi passi dal centro.
ATTESTATO DI PRESTAZIONE ENERGETICA CLASSE A + 176,00 kWh/m2a (Rif. Dgr VIII/8745 del 22/12/2008).
VENDI CASA? CONTATTACI PER UNA VALUTAZIONE GRATUITA. AFFIDATI AI PROFESSIONISTI!
- PropostaOffro
- ContrattoVendita
- Prezzo251.000,00 €
- Vani3
- Mq totali107
- Camere2
- Bagni2
- Classe energeticaA+
- Classe energetica (ipe)176
- Classe energetica (unità di misura)Kwh/m²a
- CucinaCucina a vista
- BoxBox doppio
- Tipologia immobileAppartamento
- ProvinciaLecco
- ComuneCasatenovo
- Data24-11-2025 05:16:54
- CodiceEA-788E23











