Appartamento trilocale 109mq

Dati annuncio : Vendita Appartamento, Milano
EDOLO 19 - In una delle zone più strategiche e ben collegate di Milano, nasce un nuovo progetto abitativo di rigenerazione che trasforma un edificio storico in una struttura moderna, efficiente e pensata per il massimo comfort.
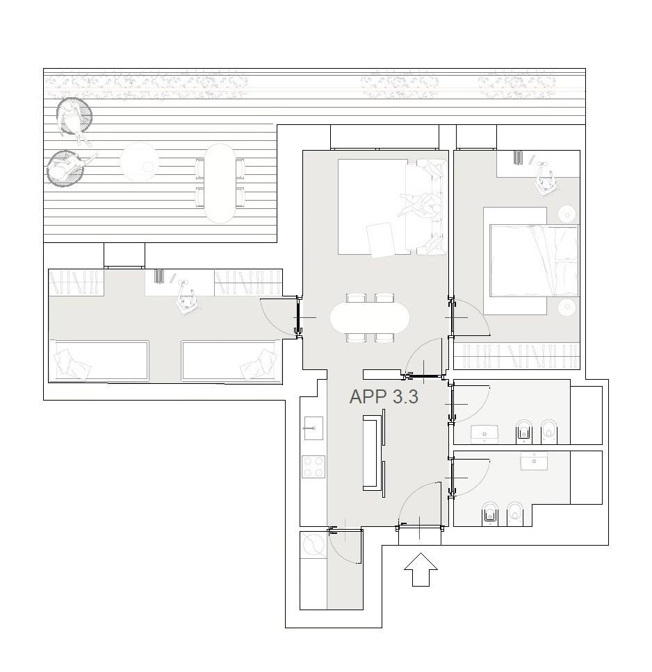
L´appartamento 3.3 è una soluzione di ca. 109 mq posto al terzo e ULTIMO piano della residenza EDOLO 19 ed è composta da ingresso su zona living con sala da pranzo e cucina a vista, ripostiglio/lavanderia, due camere da letto e doppi servizi. Sia la zona giorno che la zona notte hanno accesso alla terrazza di ca. 23 mq. Possibilità di acquisto posto auto coperto all´interno dello stabile ad € 35.000,00.
Posizionato al numero 19 di Via Edolo, il nuovo progetto si trova in una delle zone di sviluppo della metropoli: tra il quartiere Isola e Porta Garibaldi è a pochi minuti dalla stazione centrale, collegato al resto della città dalla metropolitana M3 e da mezzi di superficie.
Il progetto prevede la completa ristrutturazione di uno stabile esistente, trasformandolo in un modello di abitare moderno in classe energetica A+. Saranno realizzati 23 appartamenti sviluppati su 3 piani tutti con spazi esterni e progettati secondo i più elevati standard di qualità e sostenibilità. Ogni unità sarà studiata nei minimi dettagli per garantire spazi funzionali, luminosi e accoglienti, in grado di rispondere alle esigenze della vita contemporanea.
La struttura prevede al piano terra la realizzazione di posti auto, locale posteggio biciclette e aree comuni e di servizio.
Grazie all’utilizzo di tecnologie costruttive di ultima generazione, impianti ad alta efficienza e materiali isolanti di alta qualità, ogni abitazione offrirà performance energetiche eccellenti e una gestione ottimizzata delle risorse.
La qualità dell’abitare è al centro del progetto. Comfort termico e acustico, ambienti salubri, design moderno e finiture di pregio sono solo alcune delle caratteristiche che rendono Residenze Edolo un nuovo punto di riferimento per chi cerca un’abitazione che unisca funzionalità, estetica e benessere.
- PropostaOffro
- ContrattoVendita
- Prezzo894.000,00 €
- Vani3
- Numero piani3
- Mq totali109
- Camere2
- Bagni2
- Classe energeticaA1
- Classe energetica (ipe)30
- Classe energetica (unità di misura)Kwh/m²a
- CucinaCucina a vista
- Tipologia immobileAppartamento
- ProvinciaMilano
- ComuneMilano
- Data24-11-2025 05:16:54
- CodiceEA-35EF66











