Appartamento trilocale 110mq

Dati annuncio : Vendita Appartamento, Cesana Torinese
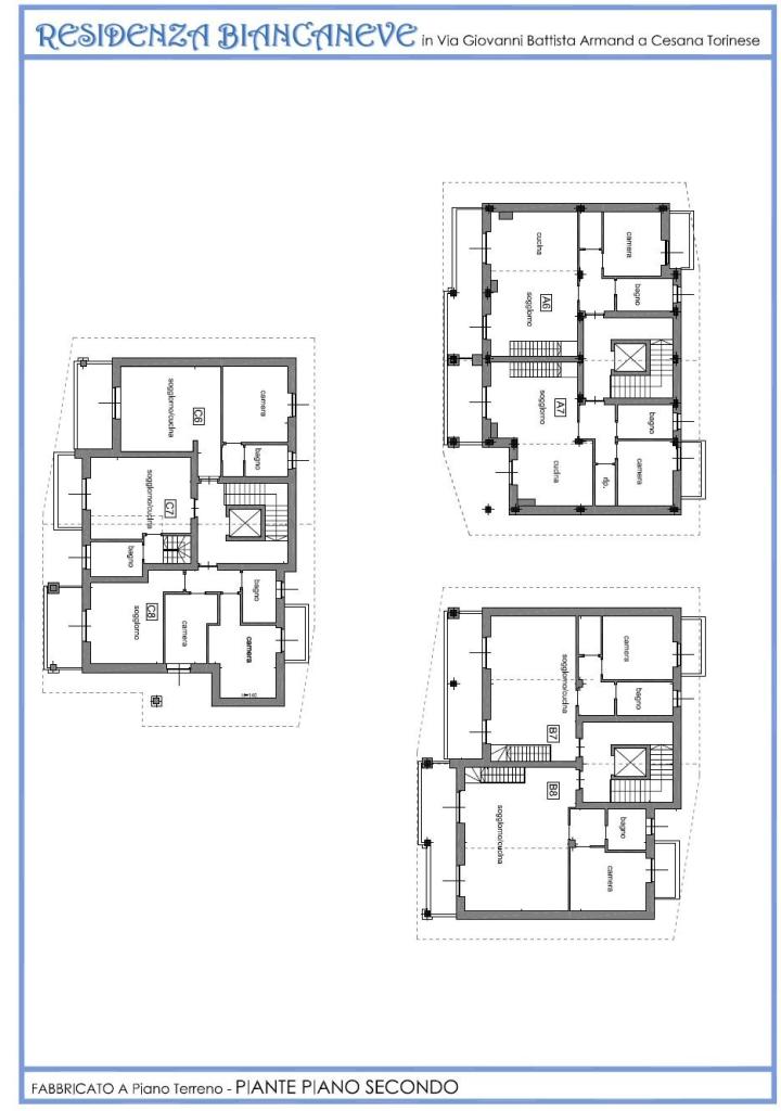
Alloggio B7: Vendiamo appartamento in nuova costruzione al secondo piano, composto da: ingresso luminoso, salone con zona pranzo e un ampio terrazzo, una camera da letto con balconcino privato e un ripostiglio assicura praticità, un bagno elegante e confortevole. Nel soppalco, una seconda camera da letto intima è perfetta per ospiti o come ufficio, accompagnata da un bagno ben organizzato. Cantina, box auto all´occorrenza.
La costruzione è caratterizzata da un tetto in legno a vista, perfettamente inserita nel contesto montano tradizionale di Cesana Torinese, rinomata località turistica situata nell´Alta Valle di Susa, nel cuore delle Alpi piemontesi. Questo incantevole paesino è famoso per essere stato uno dei centri nevralgici delle Montagne Olimpiche, avendo ospitato i XX Giochi Olimpici Invernali di Torino 2006. La sua posizione strategica e il paesaggio mozzafiato la rendono una meta ideale per gli amanti della montagna e dello sport. La località è facilmente raggiungibile: dista solo una decina di chilometri dall´uscita di Oulx Circonvallazione ed è posta al centro del rinomato comprensorio sciistico della Via Lattea. Sono disponibili numerosi servizi per i turisti, tra cui alloggi accoglienti, negozi di articoli sportivi e centri di noleggio attrezzature.
Cesana Torinese è una destinazione che coniuga alla perfezione sport, natura e cultura, rendendola ideale per una vacanza all´insegna del relax e dell´avventura. Questo immobile è una nuova realizzazione che sta prendendo forma in Via Armand, a soli 3 minuti a piedi dal centro cittadino e da tutti i servizi essenziali.
L´edificio è stato progettato con le più recenti tecnologie per l´efficienza energetica, garantendo un soggiorno rilassante circondato da aree verdi. Il complesso residenziale è composto da tre palazzine indipendenti, tutte dotate di ascensore, e include un piano interrato destinato a cantine/ski-box e ampi box auto. L´intervento è contraddistinto da dettagli architettonici in pietra e legno. Gli interni degli appartamenti sono personalizzabili per soddisfare le vostre esigenze estetiche e funzionali. Gli impianti fotovoltaici sui tetti forniranno energia elettrica condominiale gratuita. Inoltre, gli edifici saranno collegati alla rete del teleriscaldamento con contabilizzatori privati per ogni unità abitativa. I serramenti esterni, con triplo vetro-camera basso emissivo e apertura anta/ribalta, offrono un altissimo isolamento termico e acustico, rientrando in classe A++. È possibile acquistare box auto di grandi dimensioni in abbinamento con l´appartamento, a partire da € 27.000 +IVA. È prevista una detrazione fiscale del 50% per l´acquisto.
- PropostaOffro
- ContrattoVendita
- Prezzo359.000,00 €
- Vani3
- Mq totali110
- Camere2
- Bagni1
- Classe energeticaA2
- Classe energetica (unità di misura)Kwh/m²a
- StatoNuova costruzione
- CucinaCucina a vista
- TerrazzoSi
- Tipologia immobileAppartamento
- ProvinciaTorino
- ComuneCesana torinese
- Data14-08-2025 06:00:41
- CodiceEA-83826D











