Appartamento trilocale 112mq

Dati annuncio : Vendita Appartamento, Maddaloni
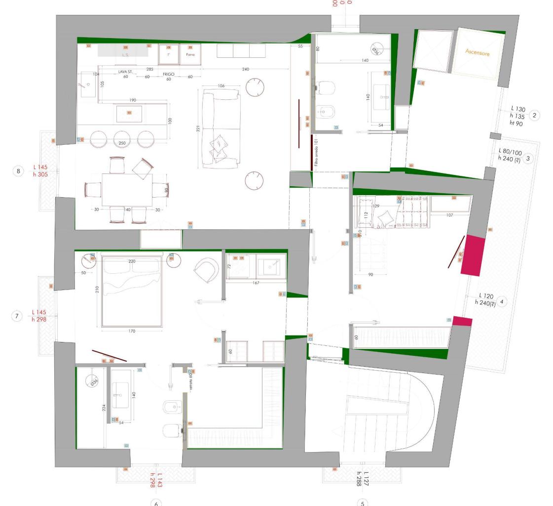
MADDALONI - VIA VALLONE Nel pieno centro cittadino, angolo tra via Vallone e via Ponte Carolino, ottimamente servito da negozi e servizi, proponiamo in esclusiva grazioso ed elegante appartamento in fase di ristrutturazione. Ubicato al piano terzo di un elegante palazzo storico, servito da ascensore, l´immobile composto da zona giorno con cucina a vista , camera matrimoniale con bagno e cabina armadio, cameretta e bagno. Inoltre corredato di box auto di circa 38 mq ed ampio terrazzo soprastante .Contattaci allo 0823 436914 o al 3920259207 anche via WhatsApp per ricevere ulteriori informazioni o fissare un appuntamento di visita della propriet. Visita il sito WWW.ECCOCASAIMMOBILIARE.IT per trovare tante altre soluzioni in vendita o in affitto adatte alle tue necessit. Seguici anche su Facebook ed Instagram per essere sempre aggiornato sulle ultime novit del mercato immobiliare. Se ti fa piacere, lascia una recensione sui nostri servizi - SC9538435
- PropostaOffro
- ContrattoVendita
- Prezzo245.000,00 €
- Vani3
- Piano3
- Mq totali112
- Bagni2
- StatoRistrutturato
- AscensoreNo
- TerrazzoSi
- CantinaNo
- ArrediNo
- Cadenza spese condominialiAnnuali
- ProvinciaCaserta
- ComuneMaddaloni
- Data17-12-2025 05:30:53
- CodiceEA-4B1A3E











