Appartamento trilocale 115mq

Dati annuncio : Vendita Appartamento, Galbiate
´´LA CASA CHE FA LUCE´´
GALBIATE Centro - Belle le case che hai visto negli annunci, ma l´esposizione? Se anche per te la luce è un fattore irrinunciabile, guarda le immagini di questo appartamento.
La collocazione al secondo piano ed i tre lati liberi forniscono agli ambienti tutto il sole di cui hanno bisogno, per scaldarsi e illuminarsi.
Anche le finiture interne contribuiscono a schiarire gli spazi, grazie all´impiego di parquet, serramenti bianchi doppio vetro e porte battenti in legno chiaro.
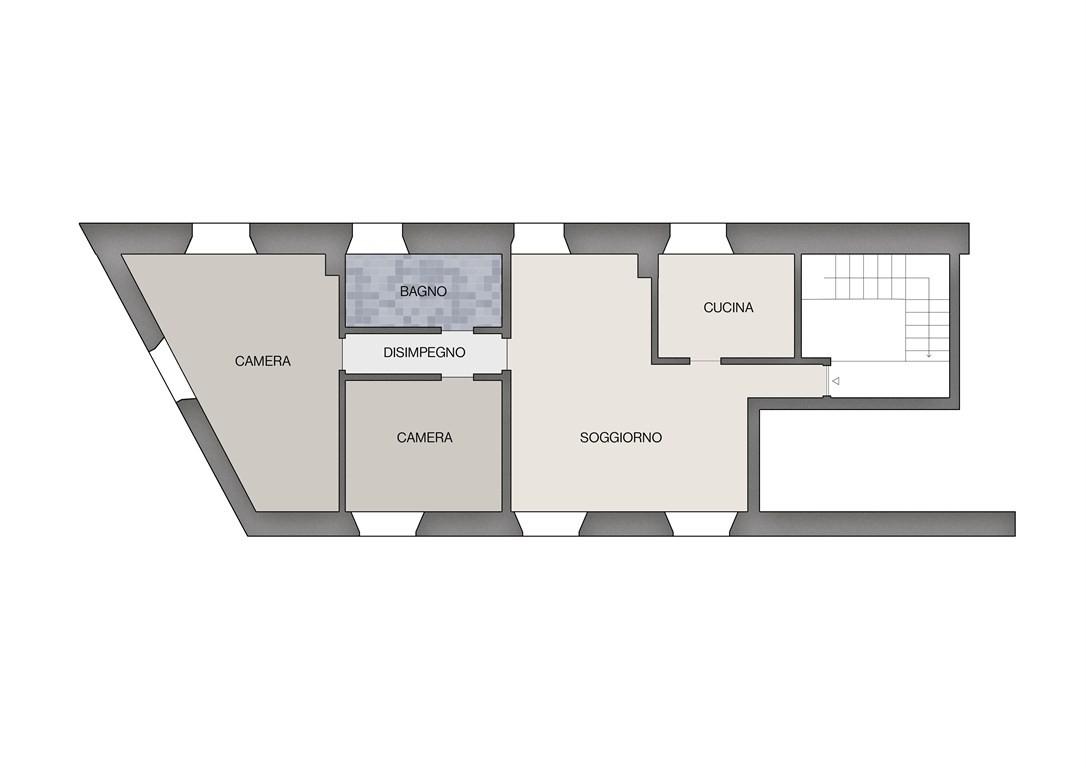
Acquisto ideale per nuclei familiari medi, la soluzione proposta è un trilocale, costituito da ampio soggiorno con zona pranzo, cucina abitabile, due camere da letto e servizio finestrato.
Le peculiarità dell´appartamento lo rendono un acquisto ideale anche per investitori.
Gli affacci dai locali offrono più sguardi sul centro paese, incorniciato dai monti lecchesi.
Questo immobile s´inserisce in una palazzina anni ´90 di due livelli; nel complesso è presente anche una cantina pertinenziale.
Diversi sono i servizi raggiungibili a piedi, grazie all´ubicazione in centro paese; anche i principali accessi stradali si trovano a breve distanza.
Questo immobile è subito disponibile e pronto per essere abitato; scopri ulteriori informazioni in agenzia.
- PropostaOffro
- ContrattoVendita
- Prezzo190.000,00 €
- Vani3
- Mq totali115
- Camere2
- Bagni1
- CucinaCucina abitabile
- Tipologia immobileAppartamento
- ProvinciaLecco
- ComuneGalbiate
- Data31-12-2025 06:13:29
- CodiceEA-FF5765











