Appartamento trilocale 147mq

Dati annuncio : Vendita Appartamento, Lecco
´´APPARTAMENTO STORIA MODERNA´´
LECCO Germanedo - Fascino storico e comfort moderno si uniscono armoniosamente in questo appartamento, realizzato all´interno di una chiesa sconsacrata del 1700. Questa tipologia di abitazione possiede enormi potenzialità in termini d´interior design, lasciando ampio spazio alla personalizzazione a seconda dello stile e delle esigenze di chi la occupa.
Dall´esterno dell´immobile, il cancelletto pedonale privato consente l´accesso al grazioso cortile esclusivo, sfruttabile come piccola area relax o per pranzi e cene estivi. Da qui, una scalinata interna accompagna al piano abitativo.
Locali caratteristici e carichi di storia, per un totale di circa 147mq, impreziositi da pavimentazione in parquet e travi originali in legno a vista.
Tre i lati liberi, che conferiscono un aspetto solivo e ottima areazione degli ambienti.
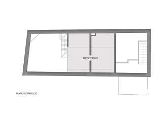
Il piano abitativo principale dispone di un ampio disimpegno centrale, estetico e funzionale, che smista gli ambienti: partiamo da un locale con due ampie finestre, luminoso e versatile, ideale come studio; troviamo poi la camera matrimoniale, che sfrutta una piccola cabina armadio interna, il bagno dotato di doccia, vasca e sanitari sospesi e la cucina abitabile. L´area living e dining open space rappresenta lo spazio principe della casa, dominante per le caratteristiche architettoniche, che prevedono camino a legna e soffitti alti a capriate. Da qui una scalinata in legno contemporanea accompagna ad uno spazio soppalcato, costituito da due ulteriori ambienti, altrettanto rifiniti.
La soluzione presenta buone condizioni, con serramenti doppio vetro, porta blindata e tetto rifatto pochi mesi fa; esternamente si ergono facciate curate, rifinite in pietra naturale.
Questa proposta è destinata principalmente a clienti in cerca di spazi non convenzionali, amanti del design e del recupero di aree storiche da reinterpretare in chiave moderna. E´ una soluzione, questa, per chi ambisce ad una casa che ne rifletta la personalità. Ma è anche un immobile per chi ama il contatto con la natura: montagne e corsi d´acqua la circondano e gli accessi a camminate naturalistiche si trovano a pochissimi passi.
Non distante dai principali servizi, l´immobile si colloca in area sovrastante l´Ospedale Manzoni di Lecco e l´Istituto Airoldi e Muzzi.
A supporto della comodità, la zona esterna adiacente dispone di diversi parcheggi pubblici sfruttabili; la via offre anche un piccolo parco giochi.
Disponibilità immediata; ulteriori informazioni in agenzia.
- PropostaOffro
- ContrattoVendita
- Prezzo318.000,00 €
- Vani3
- Mq totali147
- Camere1
- Bagni1
- Classe energeticaF
- Classe energetica (ipe)34215
- Classe energetica (unità di misura)Kwh/m²a
- CucinaCucina abitabile
- GiardinoPrivato
- Tipologia immobileAppartamento
- ProvinciaLecco
- ComuneLecco
- Data06-08-2025 05:45:30
- CodiceEA-21130B











