Appartamento trilocale 150mq

Dati annuncio : Vendita Appartamento, Desenzano del Garda
Desenzano del Garda
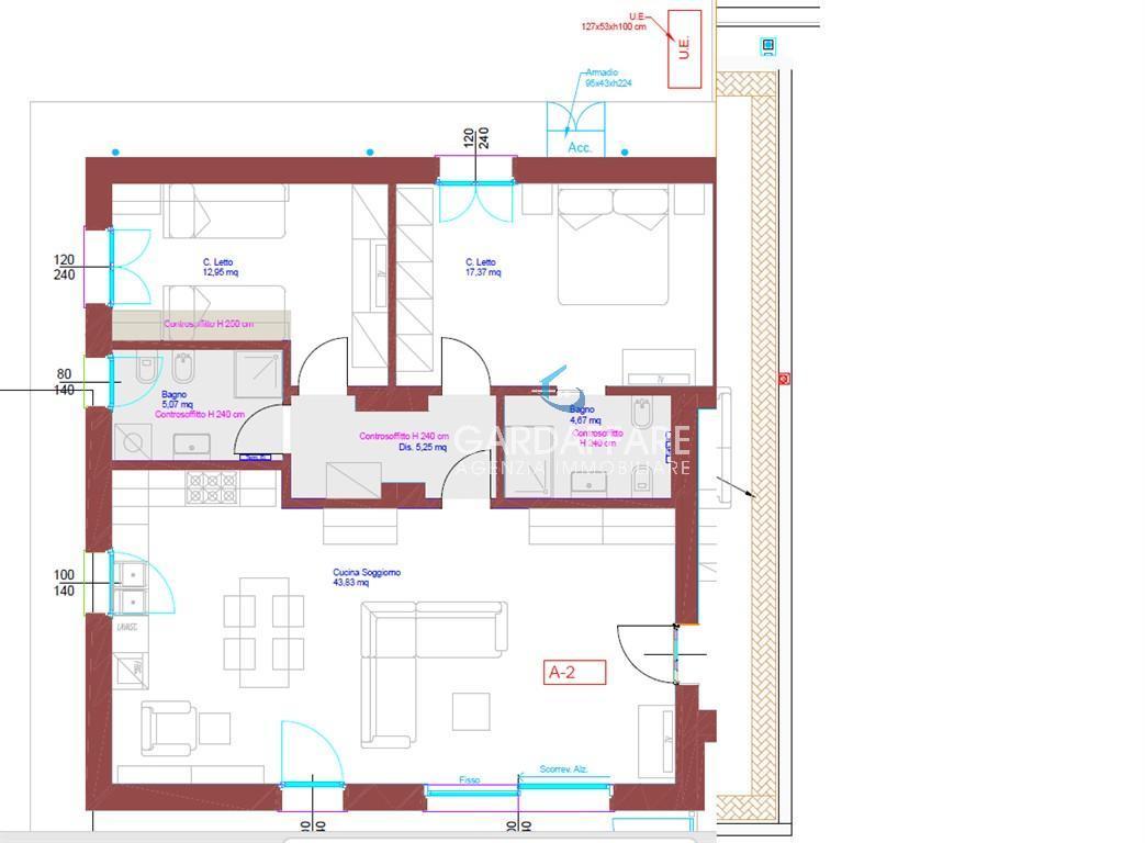
Nella frazione di Rivoltella, siamo lieti di presentarvi un nuovo e raffinato Trilocale con ampio portico e giardino privato, inserito in una palazzina esclusiva di sole sei unità abitative. Le unità hanno la comodità dell´ascensore e godono di una piscina condominiale.
Questo elegante appartamento offre spazi generosi e luminosi: un ampio soggiorno con cucina a vista, portico e giardino privato ideale per momenti di relax all´aria aperta. La zona notte comprende due lussuose camere matrimoniali, di cui una con bagno privato, un comodo disimpegno e un bagno di servizio.
Il progetto è stato attentamente studiato per garantire il massimo comfort e un´elevata efficienza energetica, grazie anche a un esteso impianto fotovoltaico. Le finiture, di alta qualità, saranno personalizzabili secondo i gusti del cliente, selezionate da un vasto capitolato.
La consegna è prevista per l´estate 2025, offrendo così l´opportunità di vivere in una dimora esclusiva.
Prezzo richiesto: € 508.000, con possibilità d´ acquistare un box auto separatamente.
Per ulteriori informazioni, contattare GARDAFFARE al numero 030/9905461. Rif. 24-53.
Classe energetica A3
- PropostaOffro
- ContrattoVendita
- Prezzo508.000,00 €
- Vani3
- Mq totali150
- Camere2
- Bagni2
- Classe energeticaA3
- CucinaCucina a vista
- GiardinoPrivato
- BoxBox singolo
- Tipologia immobileAppartamento
- ProvinciaBrescia
- ComuneDesenzano del garda
- Data31-10-2025 05:36:57
- CodiceEA-BA43B9











