Appartamento trilocale 45mq
Dati annuncio : Vendita Appartamento, San Benedetto del Tronto
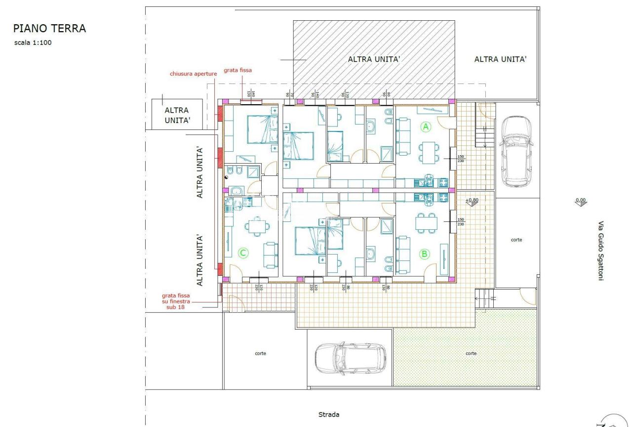
L´agenzia Re Casa Immobiliare propone in vendita appartamento di nuova ristrutturazione, in piccolissimo complesso residenziale composto da un unico piano sito in Via Sgattoni n. 7 in Porto D´Ascoli. Appartamento 45 mq al piano terra con ingresso autonomo. Ingresso su soggiorno con angolo cottura, una camera da letto matrimoniale, un bagno, corte esterna di mq 36 intermente pavimentata. Posto auto scoperto di mq 21 con cancello automatizzato autonomo. Collocato all´interno di piccolo fabbricato di 3 appartamenti, su un unico livello. Nessun spesa condominiale. Immobile indicato la unit C. Esposizione est - ovest. Classe energetica prevista A4. Internamente l´immobile sar rifinito con: pavimentazione in gres porcellanato, infissi in pvc con doppio vetro a taglio termico secondo le ultime normative relative all´isolamento termo acustico, bagno con sanitari sospesi, tapparelle elettriche, impianto di riscaldamento a pavimento, predisposizione impianto di raffrescamento, portone di ingresso blindato, video citofono. Possibilit di personalizzione delle finiture con scelta di materiali extra capitolato, con differenza dei costi a seconda dei materiali utilizzati. Inizio lavori previsto per novembre 2025 e ultimazione lavori prevista in 6 mesi dalla stipula del preliminare di compravendita. Possibilit di usufruire delle detrazioni inerenti la ristrutturazione nella percentuale del 50% in caso di acquisto come prima casa e del 36% in caso di acquisto come seconda casa. La somma imponibile su cui poter calcolare le detrazioni di Euro 50.000,00. Ottima soluzione per chi ama la tranquillit, con servizi tutti facilmente raggiungibili, a pochi passi dal Centro Commerciale La Fontana. - SC9483375
- PropostaOffro
- ContrattoVendita
- Prezzo155.000,00 €
- Anno2025
- Vani3
- Numero piani1
- PianoR
- Mq terrazzo36
- Mq totali45
- Bagni1
- Classe energeticaA4
- Classe energetica (ipe)52 kwh/m2
- AscensoreNo
- CantinaNo
- RiscaldamentoAutonomo
- ArrediNo
- BoxNo
- Cadenza spese condominialiAnnuali
- ProvinciaAscoli piceno
- ComuneSan benedetto del tronto
- Data22-10-2025 05:41:49
- CodiceEA-D6A2E5











