Appartamento trilocale 84mq

Dati annuncio : Vendita Appartamento, Lierna
NUOVA COSTRUZIONE. In piccolo contesto, nel cuore del nucleo storico di ´´Mugiasco´´, in caratteristico contesto di corte, nuovo complesso residenziale di sole cinque unità abitative, costituito da sole cinque unità abitative di diversi tagli (monolocale, bilocale, trilocali), tutti orientati al risparmio energetico con un alto efficientamento energetico e da costi di gestione annui minimi, ideale quindi anche come acquisto per una casa vacanza o per la messa a reddito.
TRILOCALE CON DOPPIO SERVIZIO.
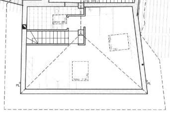
L´appartamento, posto al piano primo e ultimo senza ascensore, si compone di ingresso sulla zona giorno in open space con cucina a vista e uscita esterna sul balcone da cui è possibile godere di una piacevole vista sul lago e sull´antico borgo di Muggiasco. Sullo stesso livello si trova il primo bagno finestrato con vasca, che si potrà decidere di tenere o di sostituire su richiesta con una doccia.
Tramite una comoda scala si accede alla zona notte sul secondo livello, dove troviamo, oltre al secondo bagno finestrato con doccia, un ampio locale aperto facilmente modulabile così da creare due camere da letto. Su questo livello sono presenti due velux da cui si può ammirare la vista sul lago e sulle montagne, che donano un´ampia luminosità allo spazio.
Tutti gli appartamenti attualmente disponibili sono ultimati e pronti per la consegna immediata. Finiture signorili con parquet in tutti i locali, ad eccezione dei bagni rifiniti con materiali di pregio scelti per valorizzarne funzionalità e design.
Per non perderti anteprime e contenuti utili seguici anche sulla nostra pagina Facebook ´´Lisolago Servizi Immobiliari´´ e su Instagram digitando lisolago_immobiliare, ti aspettiamo!
Per maggiori informazioni visita il nostro sito internet www.immobiliarelisolago.it oppure contattaci per fissare un appuntamento senza impegno. Puoi chiamarci allo 0341.702013 o puoi venire a trovarci nel nostro ufficio di Mandello, via F.lli Pini Garibaldini n. 25, tutti i giorni dal lunedì al venerdì, dalle ore 09.00 alle ore 19.00, il sabato dalle ore 09.00 alle ore 12.00.
- PropostaOffro
- ContrattoVendita
- Prezzo168.000,00 €
- Vani3
- Mq totali84
- Camere2
- Bagni2
- AscensoreNo
- CucinaCucina a vista
- Tipologia immobileAppartamento
- ProvinciaLecco
- ComuneLierna
- Data18-08-2025 05:21:08
- CodiceEA-546E94











