Appartamento trilocale 85mq

Dati annuncio : Vendita Appartamento, San Giuliano Milanese
META immobiliare - Nel richiesto quartiere di Zivido, vi presentiamo un bel trilocale di 85 mq al quarto piano, molto luminoso ed in condizioni ottime.
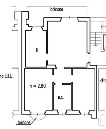
Composizione: ingresso sul soggiorno, terrazzo, cucina abitabile, due camere da letto ampie, bagno con finestra, secondo balconcino, grande cantina e possibilità di acquisto box doppio (in lunghezza per 30 mq) a 30.000 € a parte.
La casa acquistata nel 2009 si presenta ancora oggi in ottimo stato generale, pronta per essere abitata.
PUNTI DI FORZA:
metratura compatta
grande luminosità grazie alla doppia esposizione (il sole illumina la sala e la cucina di pomeriggio)
zona residenziale vicino ai servizi
ottima soluzione per coppie
locale bici condominiale
IMPORTANTE: Se per acquistare questa casa, devi o vuoi prima vendere la tua, fallo presente al consulente che ti seguirà, così potrà aiutarti anche in questo importante passo. “Meta Immobiliare - Professionisti fuori dal comune” offre una valutazione garantita con il valore di mercato e quello massimo realizzabile in tempi precisi. Il tutto senza margine di errore. Scopri di più su metaimmobiliare.com
Le indicazioni (e foto) riportate sono puramente indicative e non contrattualmente vincolanti, la presente scheda non ha valenza contrattuale e non impegna in alcun modo la presente società.
- PropostaOffro
- ContrattoVendita
- Prezzo249.000,00 €
- Vani3
- Mq totali85
- Camere2
- Bagni1
- Classe energeticaD
- Classe energetica (ipe)10998
- Classe energetica (unità di misura)Kwh/m²a
- StatoOttimo stato
- CucinaCucina abitabile
- BoxBox doppio
- Tipologia immobileAppartamento
- ProvinciaMilano
- ComuneSan giuliano milanese
- Data29-10-2025 05:36:14
- CodiceEA-B82B34











