Appartamento trilocale 86mq

Dati annuncio : Vendita Appartamento, Roma
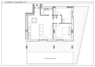
ROMA – Zona Appio Latino – NUOVA COSTRUZIONE – ULTIMA DISPONIBILITA’ – Appartamento di 86 mq. ca. sito al piano terra composto da: soggiorno con angolo cottura, camera matrimoniale, cameretta, bagno, ampio terrazzo di 27 mq. e giardino di 45 mq. Completa la proprietà una cantina. POSSIBILITA’ ACQUISTO POSTO AUTO.
Gli appartamenti nel fabbricato sono caratterizzati da consumi ridotti in classe A4, grazie all’isolamento termico e acustico e alla facciata ventilata. Inoltre, il fabbricato è dotato di un impianto solare fotovoltaico di 12,76 kWp per ridurre i costi energetici e di un sistema di riscaldamento e condizionamento centralizzati con gestione autonoma. Mutuo green. L’appartamento è situato nel quartiere Furio Camillo/Tuscolano, una delle zone più ricercate di Roma, con la vicinanza alla metropolitana e alla stazione F.S. Tuscolana. Prezzo € 475.000 – Per ulteriori informazioni potete contattare la Bea Immobiliare allo 06/90018074 – 06/90018696 – 327/0411867 oppure [email protected]
- PropostaOffro
- ContrattoVendita
- Prezzo475.000,00 €
- Vani3
- Mq totali86
- Camere2
- Bagni1
- Classe energeticaA4
- Classe energetica (ipe)351
- Classe energetica (unità di misura)Kwh/m²a
- CucinaAngolo cottura
- TerrazzoSi
- GiardinoPrivato
- Tipologia immobileAppartamento
- ProvinciaRoma
- ComuneRoma
- Data26-11-2025 06:33:05
- CodiceEA-62C48A











