Appartamento trilocale 89mq
273.000,00 €

0 Piace
0 Piace
Dati annuncio : Vendita Appartamento, Cabiate
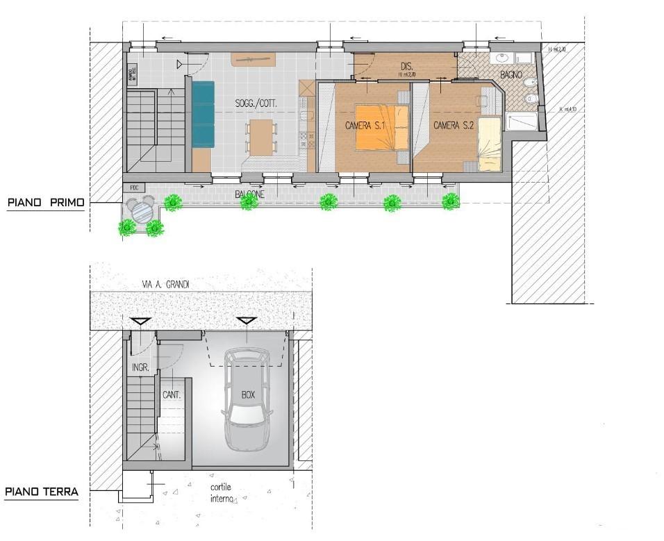
Zona centrale a 2 passi dalla stazione, in piccolo contesto senza spese condominiali, proponaimo soluzione indipendente di nuova costruzione in classe energetica ´´A´´ composto da ingresso al piano terra con scala privata che porta al piano 1° mansardato abitabile con travi in legno a vista composto da appartamento con soggiorno e cucina a vista, 2 camere, bagno e balcone, oltre cantina e box singolo al piano terra. Immobile costruito con le migliori tecnologie per il risparmio energetico, facciata con cappotto, riscaldamento a pavimento alimentato da pompa di calore, impianto di ventilazione meccanica controllata ed impianto fotovoltaico per la produzione di energia elettrica. Consegna a breve!
- PropostaOffro
- ContrattoVendita
- Prezzo273.000,00 €
- Vani3
- Mq totali89
- Camere2
- Bagni1
- Classe energeticaA1
- StatoNuova costruzione
- CucinaCucina a vista
- RiscaldamentoA pavimento
- BoxBox singolo
- Tipologia immobileAppartamento
- ProvinciaComo
- ComuneCabiate
- Data18-12-2025 06:32:08
- CodiceEA-FF3134











