Appartamento trilocale 90mq
Dati annuncio : Vendita Appartamento, Maddaloni
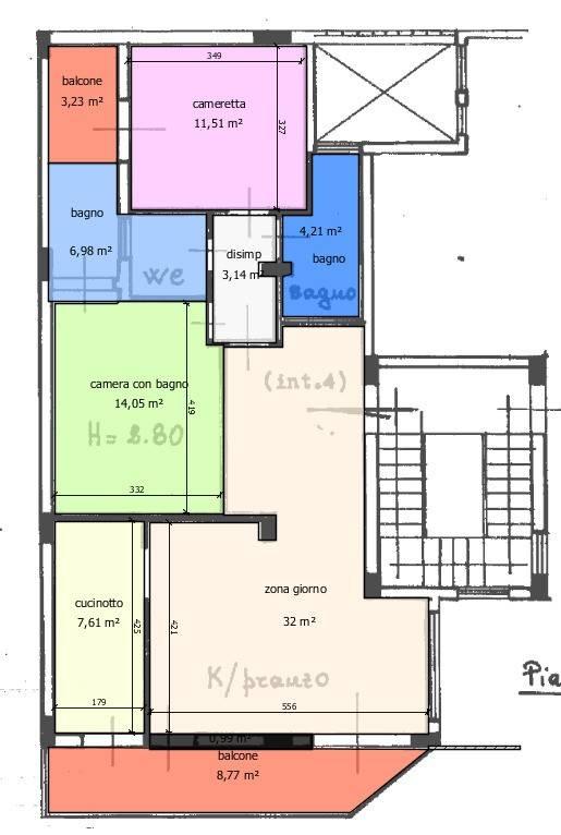
MADDALONI - VIA CORNATO L´appartamento in vendita si trova nella citt di Maddaloni, nella richiestissima Via Cornato; Si trova al primo piano di un edificio di due piani ed di libero al rogito, pronto per essere acquistato e abitato. Le spese condominiali sono di soli circa 20 euro al mese, rendendolo un´opzione conveniente per chi desidera una soluzione abitativa senza troppe spese aggiuntive. L´ appartamento composto da 3 locali, di cui 2 camere da letto, salone con cucina e 2 bagni, di cui uno in camera; Gli ambienti sono ampi e luminosi, grazie anche all´esposizione sud/est che garantisce una buona illuminazione naturale durante tutto il giorno. L´appartamento in ottimo stato di conservazione, grazie alla cura e manutenzione dei proprietari precedenti. Gli infissi sono in alluminio, garantendo un buon isolamento termico e acustico. presente anche un sistema di allarme per garantire la sicurezza del tuo nuovo appartamento. L´appartamento venduto non arredato, ma dispone di un cucinotto comodo e funzionale. Inoltre, presente sia un balcone a livello che un terrazzo sovrastante, perfetti per godersi il sole e l´aria fresca durante le giornate pi calde. Nel prezzo di vendita sono compresi circa 40 mq del piano seminterrato, ideali per il parcheggio comodo di almeno due auto, parte del terrazzo soprastante con annesso vano sottotetto adibito a lavanderia. I Il riscaldamento autonomo e alimentato a metano, garantendo un buon risparmio energetico. In sintesi, questo appartamento in vendita a Maddaloni una soluzione perfetta per chi cerca un´abitazione comoda, funzionale e dal buon rapporto qualit-prezzo. Non esitare a contattare l´agenzia immobiliare di fiducia per fissare una visita e scoprire di pi su questa interessante opportunit. PER LA VISITA VIRTUALE CLICCA SU VIRTUAL TOUR Per info e/o appuntamenti contattaci, allo 0823.436914 Seguici per restare sempre aggiornato su Fb: Eccocasa Maddaloni Instagram: Eccocasa_ Maddaloni - SC9538951
- PropostaOffro
- ContrattoVendita
- Prezzo158.000,00 €
- Anno1994
- Vani3
- Numero piani2
- Piano1
- Mq totali90
- Bagni2
- StatoOttimo
- AscensoreNo
- CantinaNo
- RiscaldamentoAutonomo
- ArrediNo
- DisponibilitLibero al rogito
- Cadenza spese condominialiAnnuali
- ProvinciaCaserta
- ComuneMaddaloni
- Data17-12-2025 05:30:53
- CodiceEA-C889F1











